- Kauf
- Zinshaus / Renditeobjekt
Objekttyp
Zinshaus / RenditeobjektEckdaten
- Immobilien-ID:5258
- Zustand:Erstbezug
- Nutzfläche:477m2
Beschreibung
Zum Verkauf gelangt ein genehmigtes Wohnungsprojekt welches exklusiv in einer der besten Bezirke Wiens liegt. Dank seiner luxuriösen Wienerwaldvillen gehört Döbling neben dem benachbarten Währing zu den bekannten Nobelbezirken, allein in Döbling und Währing stehen mehr als die Hälfte aller Wiener Stadtvillen.
Exklusiv in einer der besten Bezirke Wiens zu leben, ist Lebensqualität pur: Es bietet alles, von märchenhafter Natur bis hin zu allen denkbaren Freizeitaktivitäten in den Hotspots Wiens, sei es bei einem Heurigen mitten in den Weinbergen, im UNESCO-Biosphärenpark Wienerwald, vom Kletterpark, Pötzleinsdorfer Schlosspark, Schwarzenbergpark bis zum Am Himmel und den schönsten Schwimmbädern wie Krapfenwaldbad und Schafbergbad.
Die besten Restaurants finden sich in der Nähe. Vom ältesten und schönsten Wirtshaus Wiens, dem Pfarrwirt bis zum Luxus Dining im alten Ziegelgewölbe mit Blick auf den Fasskeller im Amador’s, geschweige denn zum ‚Sehen und gesehen werden‘ im alten Brunnerhof im Dots Nussdorf oder doch italienisches dolce vita im Francesco, ‚der Neunzehnte‘ bietet für jeden Gusto feinste lukullische Hotspots. Mitten ins urbane Leben gelangt man in einer halben Stunde.
Döbling ist der Wiener Bezirk mit dem stadtweit zweithöchsten Pro- Kopf-Einkommen. Dieser Umstand schlägt sich auch auf den Immobilienmarkt nieder. Seit jeher gehört der 19. Wiener Bezirk zu den Stadtvierteln mit den höchsten Immobilienpreisen. Dabei sind die Preise über die letzten Jahr konstant gestiegen und auch trotz Corona Krise setzte sich dieser Trend fort.
PURE LEBENSQUALITÄT, MODERNE ARCHITEKTUR SOWIE DIE VORZÜGE EINES NEUBAUS (NIEDRIGENERGIE)
FAKTEN:
BAUGENEHMIGT !!!!
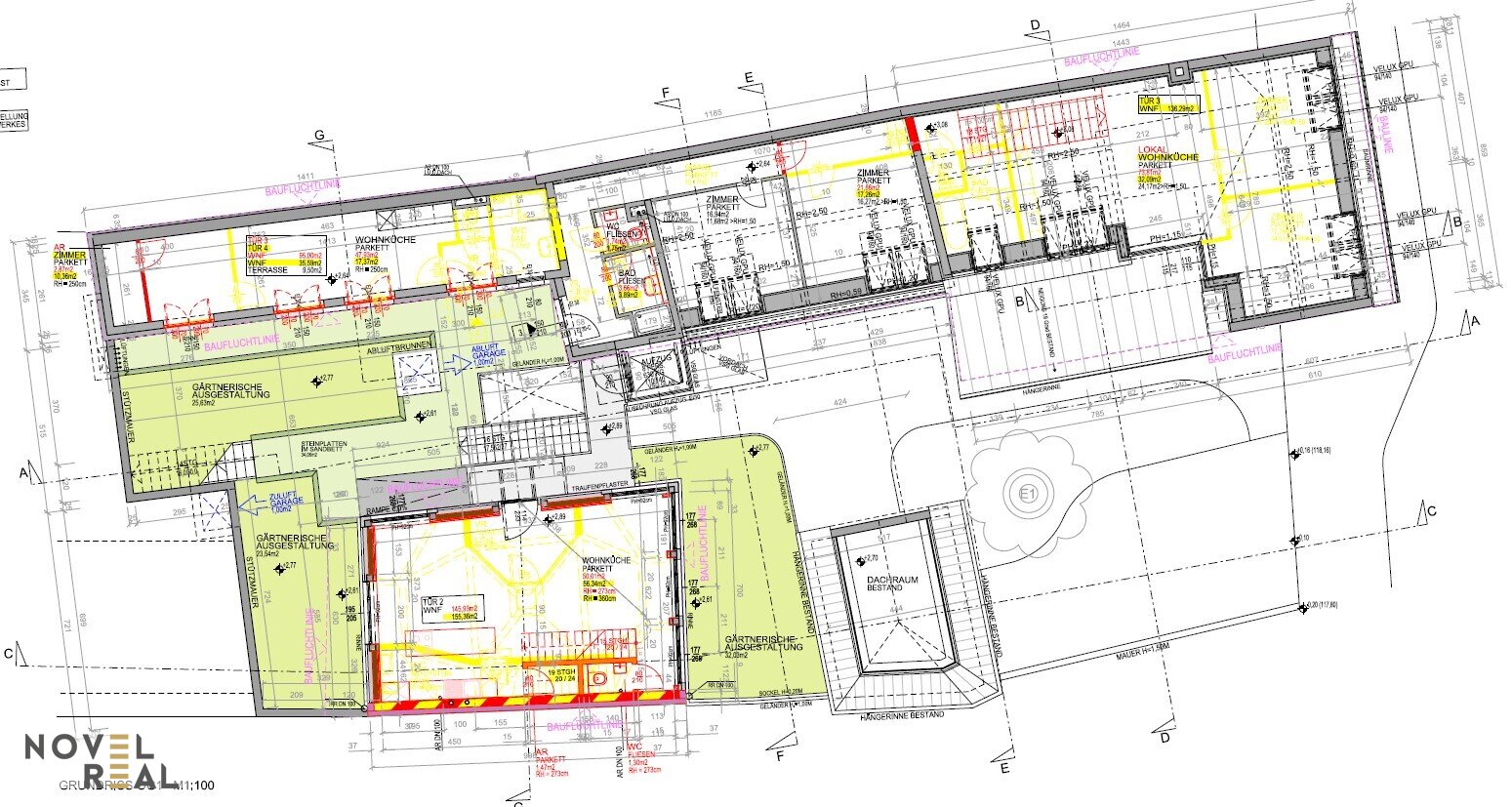
GRUNDSTÜCKGRÖSSE 1.270 M²
478 M2 WNFL GESAMT
4 WOHNUNGS / GESCHÄFTS EINHEITEN
*
TOP 1 IM WINZERHAUS:
* 149,51 m²
* + 2 Lagerräume
*
TOP 2 IM SALETTL
* 155,36 m²
* Zimmer/Lokal mit Zugang zum Garten
* 3 Zimmer
* 2 Bäder
* 3 Toiletten
*
TOP 3 IM WINZERHAUS:
* 136,29 m²
* 3 Zimmer/Lokal mit Zugang zum Garten
* Duschbad
* Toilette
*
TOP 4 IM WINZERHAUS:
* 35,59 m²
* 2 Zimmer/Lokal mit Zugang zum Garten
* Duschbad
* Toilette
VB.: € 1.500.000,- MIO FÜR GRUNDSTÜCK, PROJEKTENTWICKLUNG, EINREICHPLANUNG UND BAUBESCHEID
EXQUISITE LAGE IN DEN WEINBERGEN DÖBLINGS:
* Erstklassige Lage im Grünen
* Heurige in fußläufiger Entfernung
* Erholung, Sport und Natur im Wienerwald, Pötzleinsdorfer Schlosspark, Schwarzenbergpark
* Gute Anbindung an das öffentliche Verkehrsnetz
* Ideal für Familien
* Volksschule nur 1 Minute entfernt
* American International School 2 Minuten entfernt
* Rudolfsteiner Schule Pötzleinsdorf (Waldorfschule) 5 Minuten entfernt
* Spielplätze in der näheren Umgebung
* Supermärkte sind mit dem Auto in 5 Minuten und mit dem Bus in circa 10 Minuten erreichbar
* Hundefreilaufzone im Schwarzenbergpark
FÜR FRAGEN UND FÜR BESICHTIGUNGEN STEHT IHNEN FRAU NINA JORDANOV SEHR GERNE UNTER 0660 44 27 200 ZUR VERFÜGUNG
_*__Alle Angaben basieren alleinig auf Informationen, die uns von unserem Auftraggeber übermittelt wurden. Trotz aller Sorgfalt können wir für die Richtigkeit, Vollständigkeit und Aktualität dieser Angaben keine Gewähr übernehmen. Jegliche Weitergabe der übermittelten Daten an Dritte ist nicht gestattet. Der Maklervertrag kommt durch schriftliche Vereinbarung oder Inanspruchnahme unserer Maklertätigkeit zustande. Der Makler kann als Doppelmakler tätig werden. Sollte das von uns nachgewiesene Objekt bereits bekannt sein, teilen sie uns dies bitte unverzüglich mit. _
_Die Maklergebühr ist ausschließlich bei Zustandekommen eines gültigen Rechtsgeschäfts fällig und vom Käufer an Novel Real Immobilien GmbH zu zahlen. Es wird ausdrücklich auf die Nebenkostenübersicht hingewiesen. Bei den Visualisierungen und Abbildungen der Immobilie (insbesondere von Inneneinrichtungen) kann es sich um Symbolfotos bzw. fototechnisch optimierte Fotos handeln. Die in diesem Exposé veröffentlichten Inhalte und Fotos unterliegen dem österreichischen Urheberrecht. Jede Vervielfältigung, Bearbeitung, Verbreitung und jede Art der Verwendung bedürfen der vorherigen schriftlichen Zustimmung der Novel Real Immobilien GmbH._
_Hiermit weisen wir auf das Bestehen eines familiären und/oder wirtschaftlichen Naheverhältnisses zum Verkäufer hin._
Infrastruktur / Entfernungen
Gesundheit
Arzt
Flächen
Grundriss









