- Kauf
- Haus
Objekttyp
HausZimmer
9Badezimmer
3Eckdaten
- Immobilien-ID:1956
- Zustand:Erstbezug
- Wohnfläche:300m2
- Zimmer:9
Beschreibung
Zum Verkauf steht eine hochwertig ausgestattete Doppelhaushälfte (VARIO HAUS) in Langenzersdorf, in unmittelbarer Nähe zu Wien.
Die Immobilie befindet sich in einer Wohngegend mit guter Anbindung an das öffentliche Verkehrsnetz (Bus 850 und 856)
In der Umgebung finden sich zahlreiche Freizeitmöglichkeiten (Erholungsgebiet Seeschlacht, Bisamberg) Schulen, und Kindergärten.
Außerdem sind Einkaufsmöglichkeiten (zB.Einkaufscenter C21, Spar, Bauhaus, Metro,...) für den täglichen Bedarf in nur wenigen Gehminuten erreichbar.
Top1 gliedert sich wie folgt auf:
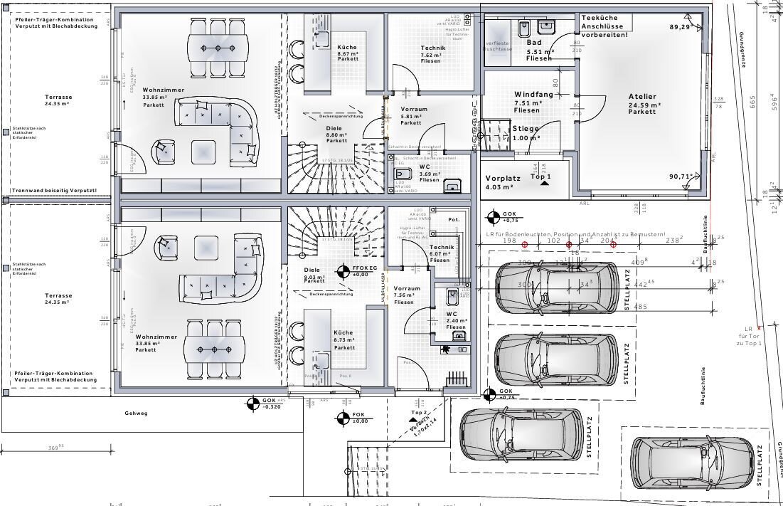
EG:
Vorraum, Technikraum, WC mit Handwaschbecken, offene Wohnküche, Wohn/Essbereich mit Ausgang auf die Terrasse
Besonderheit:
Separater Zugang zu dem Atelier, welches auch als Einleger-Wohnung oder Büro genutzt werden kann.
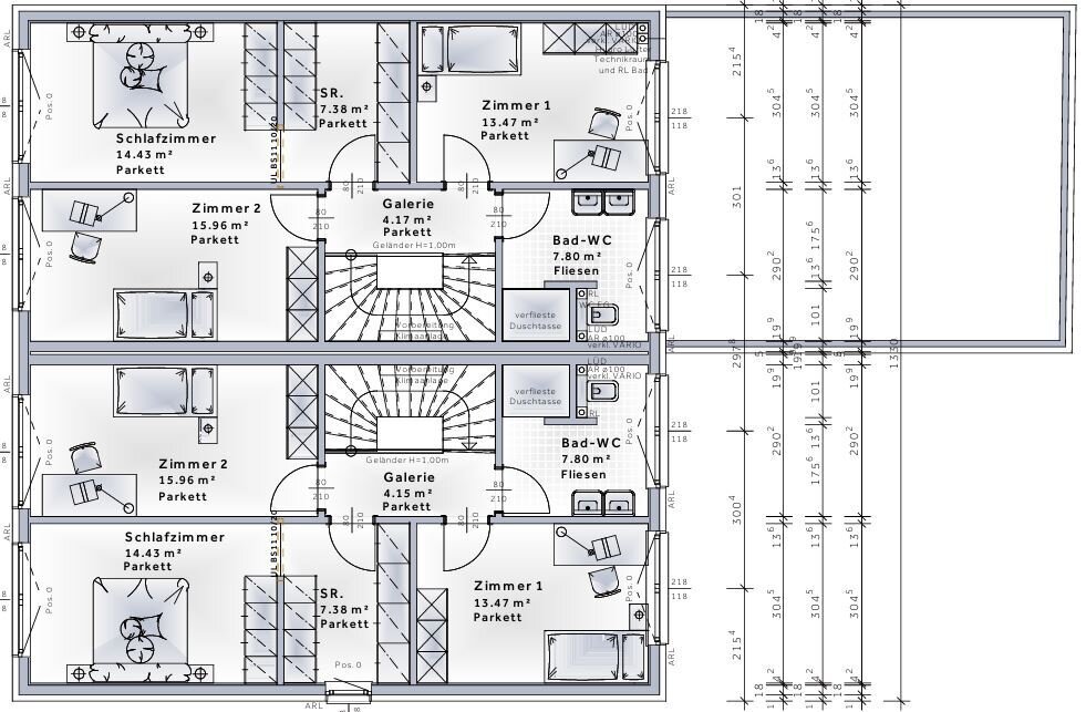
OG:
Galerie, 3 Schlafzimmer (Hauptschlafzimmer mit eigenem Schrankraum), Badezimmer mit Doppelwaschtisch, WC und Dusche.
Top 2 gliedert sich wie folgt auf:
EG:
Vorraum, Technikraum, WC mit Handwaschbecken, offene Wohnküche, Wohn/Essbereich mit Ausgang auf die Terrasse
OG:
Galerie, 3 Schlafzimmer (Hauptschlafzimmer mit eigenem Schrankraum), Badezimmer mit Doppelwaschtisch, WC und Dusche.
Es befinden sich 4 Freistellplätze auf dem Grundtück, welche bereits im Preis inkludiert sind.
Auch hebt sich dieses Haus gegenüber anderen Doppelhaushälften nicht nur wegen der gehobenen Ausstattung
(Klimaanlage der Marke DAIKIN, Bodenkühlung, elektrische Rolläden bzw. Raffstores, Echtholzparkett der Firma Scheucher, Vorbereitung für PV-Anlage) ab,
sondern auch durch die Gartengröße von über 500m².
Fazit:
Diese Doppelhäuser vereinen modernen Wohnkomfort und hochwertige Ausstattung in einer erstklassigen Lage.
Ideal für Familien, die Wert auf Qualtiät und eine hervorragende Infrastruktur legen.
Der Baustart ist bereits erfolgt und geplante Fertigstellung ist April/Mai 2026.
Die Zahlung vom Treuhandkonto an den Verkäufer erfolgt erst nach Schlüsselübergabe und Eintragung im GB!
Wir weisen darauf hin, dass zwischen dem Vermittler und dem zu vermittelnden Dritten ein familiäres oder wirtschaftliches Naheverhältnis besteht.
Der Vermittler ist als Doppelmakler tätig.
Infrastruktur / Entfernungen
Gesundheit
Arzt
Merkmale
- Terrasse
- Garten
Energieausweis
- EPART: BEDARF
- FGEE-Klasse: A++
- FGEE-Wert: 0.48
- HWB-Klasse: B
- HWB-Wert: 32.7
Grundriss





















































































































































































































































































































































































































































































































































































































































































































