- Kauf
- Haus
Objekttyp
HausZimmer
11Badezimmer
1Eckdaten
- Immobilien-ID:10017
- Nutzfläche:1020m2
- Zimmer:11
Beschreibung
RAUMWUNDER IM WALDVIERTEL: WOHNEN, ARBEITEN & VISIONEN VERWIRKLICHEN!
Ihr neues Projekt mit unendlichen Möglichkeiten – Café, Kaufhaus, Produktion und großzügiges Wohnen auf 1.702 m² Grund.
Suchen Sie den idealen Standort für Ihr Business kombiniert mit privatem Wohnglück? Oder ein Investment mit enormem Entwicklungspotenzial? Diese außergewöhnliche Liegenschaft im idyllischen Waldviertel bietet Ihnen auf einer Gesamtnutzfläche von über 1.000 m² den Raum, den Ihre Träume brauchen. Ehemalige(s) Bäckerei, Kaufhaus, Café wartet darauf wieder in neuem Glanz zu erstrahlen.
DIE HIGHLIGHTS AUF EINEN BLICK:
*
Multifunktional: Kombination aus Gastronomie (Café), Einzelhandel (Kaufhaus), Produktion (ehem. Bäckerei) und Wohnen.
*
Enormes Platzangebot: Über 400 m² Lager-, Werkstatt- und Expeditflächen.
*
Wohnkomfort: Ca. 172 m² Wohneinheit auf zwei Ebenen mit Ausbaureserve.
*
Logistik-Profi: Großes Expedit für bis zu 6 Fahrzeuge und 8–10 Kundenparkplätze direkt vor der Tür.
*
Zukunftspotenzial: Ca. 80 m² ausbaufähige Fläche im Obergeschoss für weitere Wohnträume oder Büroeinheiten.
-------------------------
OBJEKTBESCHREIBUNG
Erdgeschoss: Das Herzstück für Business & Logistik
Das Erdgeschoss ist ein wahres Raumwunder. Das charmante Café bietet Platz für 70–80 Gäste und verfügt über eine eigene Toilettenanlage – ideal für Gastronomen oder als Erweiterung für das angrenzende Kaufhaus (68 m²).
Die ehemalige Bäckerei (270 m²) wurde im Jahr 2000 komplett saniert und erweitert. Dank der soliden Stahl-Hallenkonstruktion, dem Mehllager und dem großzügigen Expedit eignet sich dieser Bereich perfekt für handwerkliche Produktion, Catering oder Logistik. Die Be- und Entladung von bis zu 6 Fahrzeugen gleichzeitig ist hier problemlos möglich. Eine Werkstatt und diverse Lagerräume runden das gewerbliche Angebot ab.
Wohnen & Erholen: Privatsphäre auf höchstem Niveau
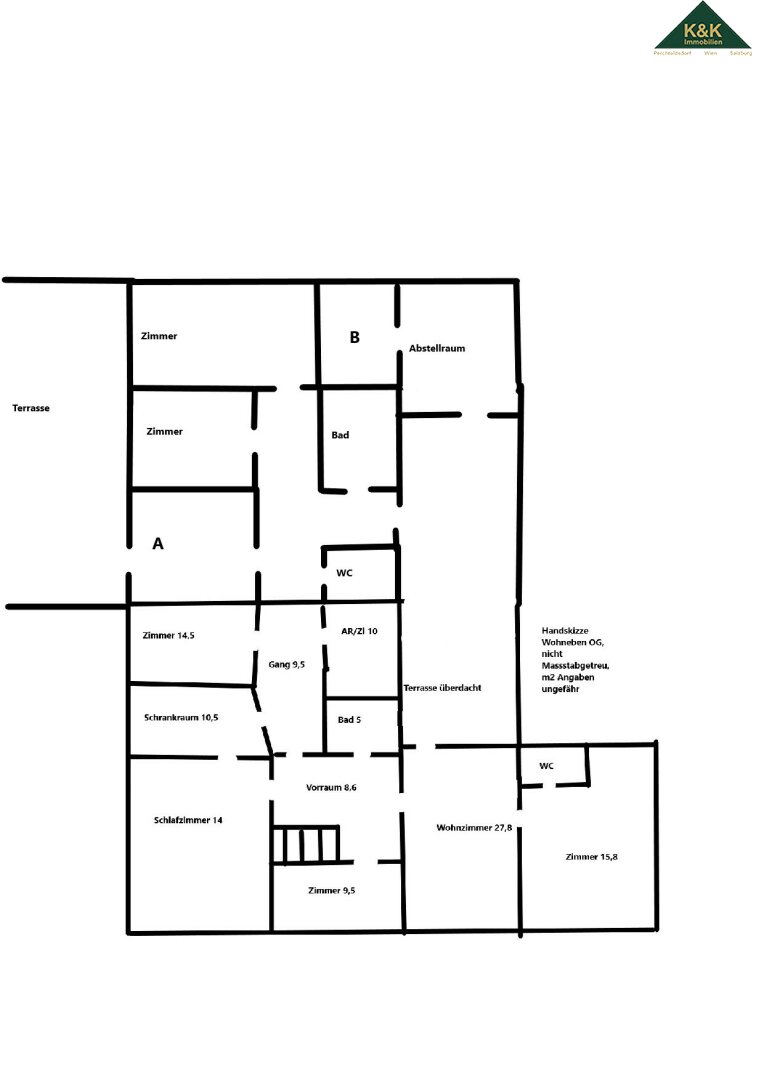
Die Wohneinheit verfügt über einen separaten Eingang. Im Erdgeschoss befinden sich Küche und Nebenräume, während das Obergeschoss mit 11 Zimmern beeindruckt. Ob als Großfamilie, Wohngemeinschaft oder Kombination aus Büro und Wohnen – hier ist alles möglich. Zwei Terrassen (eine davon überdacht) laden dazu ein, die Ruhe des Waldviertels zu genießen.
-------------------------
FLÄCHENAUFSTELLUNG:
Bereich
Fläche (ca.)
Bäckerei / Produktion
270 m²
Lagerflächen
170 m²
Kaufhaus
68 m²
Café (inkl. WC-Anlagen)
108 m²
Expedit
135 m²
Werkstatt
99 m²
Wohnbereich
172 m²
Ausbaureserve (Dachboden)
80 m²
GRUNDSTÜCKSFLÄCHE
1.702 m²
-------------------------
Folgende im Objekt verbleibenden Geräte, Maschinen und Einrichtungen sind im Kaufpreis enthalten:
BÄCKEREI
Wirkmaster
Tiefkühl-Anlage mit Kühlschrank-Vorraum
Etagenbackofen Matador
Stikkenofen Rotostar
Gärraum (ohne Klimagerät)
Gärwagen Nirostar + 5 Auflagen
Gärgutträger mit Tuch
Geschirrspüler
Teigkneter Kemper
Planetenrührmaschine Steno Mandl
doppelte Schlagmaschine
Ausrollmaschine
Fritter
Fritter
E-Herd
automatisches Handwaschbecken
Spüle mit 2 Becken Stöllner
Mehl-Silo HB-Technik 3 Stk. (ohne Silowaage)
Mehlwagen Edelstahl
Wassermischgerät
Toastschneider
div.Arbeitstische
Verpackungsmaschine Saropack
Dehnfolien-Verpackungsmaschine
Stikkenwagen inkl. Bleche
Aufbackofen Gassner
Krapfenfüller 1 Kolben
Brotwagen mit Holzrost (9 Auflagen)
viele Bäckersteigen, Brotkörbe, Simperl u. div. Kleinmaterial
KAUFHAUS
Verkaufsvitrine u. Brotregale
Brotschneidmaschine
Registrierkassa
Wurstvitrine Taiga Berger
CAFE
Kaffeemühle Schärf
Bain-Marie
Gläserspüler
Schankanlage
Einrichtung (Tische, Stühle, Bänke)
BÜRO
Nadeldrucker
Etikettendrucker
Geldzählmaschine für Scheine
SONSTIGE
Ölheizung
Heizöltanks 9.000 lt
Pufferspeicher
Pufferspeicher
Waschmaschine
Wäschetrockner
Solaranlage
LAGE:
Eingebettet in die kraftvolle Natur des Waldviertels bietet diese Liegenschaft nicht nur eine hohe Lebensqualität, sondern auch eine gute Sichtbarkeit für Gewerbetreibende. Mit 8 bis 10 eigenen Parkplätzen direkt vor dem Gebäude ist eine optimale Erreichbarkeit für Kunden garantiert.
Hinweis: Ein Energieausweis wurde vom Eigentümer bereits in Auftrag gegeben und wird nachgereicht.
Nutzen Sie diese seltene Gelegenheit, Arbeiten und Wohnen an einem Ort zu vereinen!
-------------------------
Kontaktieren Sie uns noch heute für einen persönlichen Termin.
INFRASTRUKTUR:
Polizei, VS Kindergarten, Bank und Geldautomat in Waldhausen ca. 3 km entfernt.
Post in Rastenfeld ca. 8 km entfernt
Arzt mit Apotheke im Ort.
Bitte haben Sie Verständnis dafür, dass aufgrund der neuen EU-Bestimmungen nur komplette Anfragen (Name, Telefonnummer, E-Mail) zu einem Besichtigungstermin führen.
GERNE STEHE ICH IHNEN JEDERZEIT FÜR BESICHTIGUNGEN UND FRAGEN ZUR VERFÜGUNG.
SIE ERREICHEN MICH UNTER + 43 699 13 80 66 19 [tel:+4369913806619].
Der Vermittler ist als Doppelmakler tätig.
Flächen
Merkmale
- Terrasse
Grundriss


















































































































































































































