- Kauf
- Wohnung
Objekttyp
WohnungZimmer
3Badezimmer
1Eckdaten
- Immobilien-ID:5414
- Zustand:Gepflegt
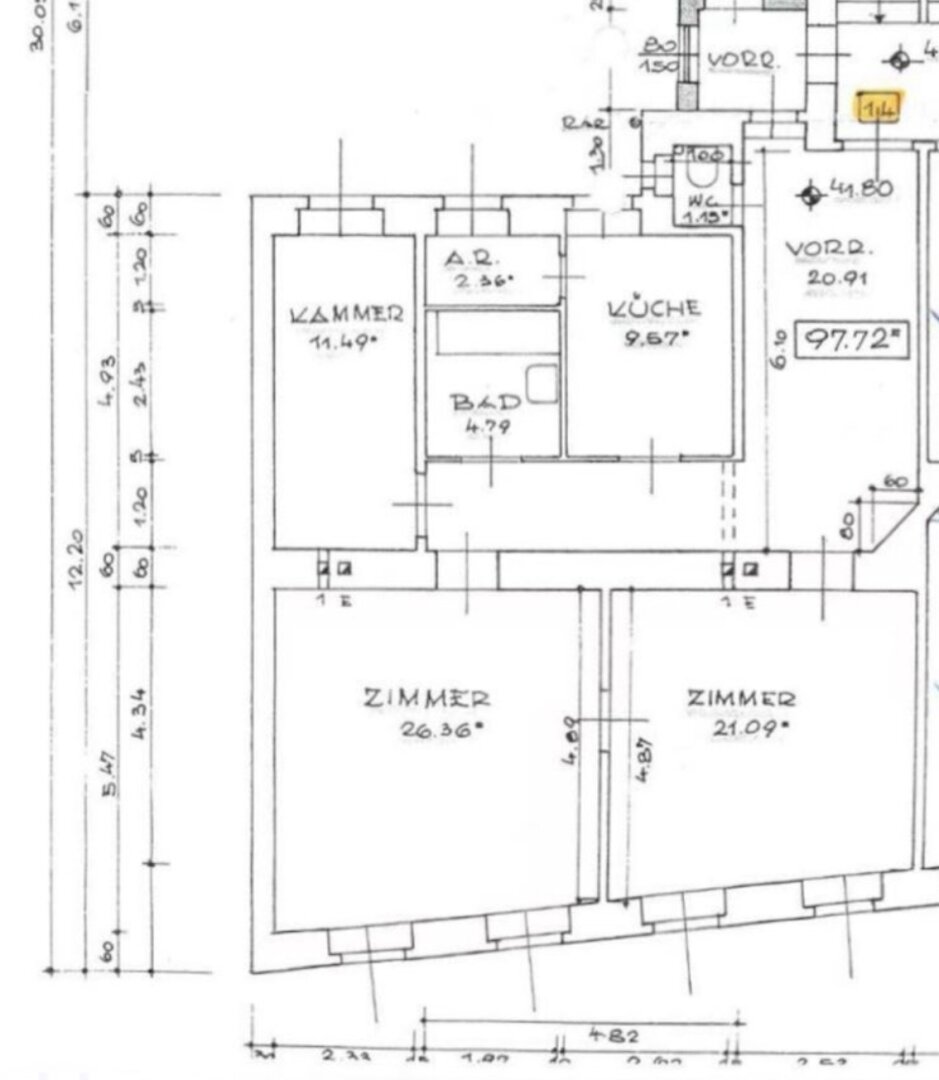
- Wohnfläche:97.72m2
- Zimmer:3
Beschreibung
Zum Verkauf steht eine drei Zimmer Wohnung mit 97,72 m2 Wohnfläche im 5. Wiener Gemeindebezirk. Die Wohnung befindet sich im 1. Liftstock in unmittelbarer Gehdistanz zur S-Bahn Matzleinsdorfer Platz.
Die Wohnung teilt sich wie folgt auf:
- ein großzügiger Eingangsbereich
- ein 26,36 m2 großen Wohnzimmer
- ein 21,09 m2 großen Schlafzimmer
- ein weiteres hofseitiges zirka 11,49 m2 großen Zimmer
- einer 9,57 m2 großen hofseitigen Küche
- einem sehr großen Badezimmer mit Badewanne, Dusche und WC
- ein separates WC
An der Wohnung besteht Sanierungsbedarf. Alle Zimmer sind separat begehbar. Altbauelemente wie Holzkastenfenster, Parkettböden und hohe Räume sind gegeben. Beheizt wird die Wohnung mittels Gasetagenheizung der Marke Junkers, die vor 3 Jahren neu installiert wurde. Zur Wohnung gehört ein Kellerabteil.
Öffentliche Verkehrsmittel: 1, 18, S-Bahn, 12 A, 14 A, N62
Infrastruktur:
Die Infrastruktur rund um die Wohnung ist als hervorragend zu bezeichnen. Die Wohnung besticht durch die Nähe zur Innenstadt und bietet neben allen Geschäften für den täglichen Bedarf, ebenso zahlreiche Kindergärten und Schulen, die zu Fuß gut erreichbar sind. Eine hohe Dichte an Ärzten, Krankenhäusern, sowie Bildungs- und Kultureinrichtungen und vor allem die günstige Verkehrsanbindung sowohl öffentlich als auch privat steigern die Attraktivität des Objekts enorm!
Kaufpreis und Nebenkosten:
Kaufpreis: 399.000,- Euro
Betriebskosten inkl. Reparaturrücklage (110,45 Euro) und Ust: 395,92 Euro
Provision: 3 % vom Kaufpreis zzgl. 20 % UST
SEIT 1. APRIL 2024:
Förderung der Bundesregierung zur Ersparnis der Grundbuch- (1,1%) und die Pfandrechtseintragungsgebühr (1,2%) in Höhe von gesamt 2,3% des Kaufpreises bei Anmeldung des Hauptwohnsitzes.
Nähere Informationen und Besichtigungstermine:
Für nähere Fragen bzw. für einen unverbindlichen Besichtigungstermin steht Ihnen Herr Uyar unter 0699/17105918 oder per Email uyar@immobilienquartier.at zur Verfügung.
Wir bitten um schriftliche Anfragen mit vollständiger Angabe Ihrer Kontaktdaten ( Name, Adresse, Telefonnummer).
Infrastruktur / Entfernungen
Gesundheit
Arzt
Flächen
Energieausweis
- EPART: BEDARF
- FGEE-Klasse: C
- FGEE-Wert: 1.67
- HWB-Klasse: C
- HWB-Wert: 65.1
Grundriss









