- Miete
- Wohnung
Objekttyp
WohnungZimmer
3Badezimmer
1Eckdaten
- Immobilien-ID:2126
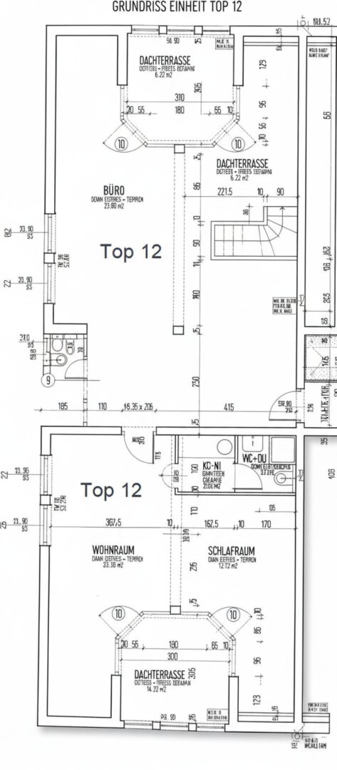
- Nutzfläche:110m2
- Zimmer:3
Beschreibung
Suchen Sie eine Möglichkeit, Wohnen und Arbeiten optimal zu kombinieren? Dann ist dieses Angebot genau das Richtige für Sie!
Die Immobilie bietet eine perfekte Balance aus Wohn- und Arbeitsbereich. Ideal für Freiberufler, Selbstständige oder für ein modernes Homeoffice-Konzept. Genießen Sie ein durchdachtes Raumkonzept, das sowohl produktive Arbeitszeiten als auch erholsame Pausen ermöglicht – alles unter einem Dach!
Highlights:
* Großzügiger Arbeitsbereich, flexibel gestaltbar
* Ruhige Wohnräume mit Wohlfühlcharakter
* Eigener PKW-Stellplatz direkt vor Ort, bequem und zeitsparend
* Gute Anbindung an den öffentlichen Nahverkehr und die Infrastruktur
Ob für Kreativarbeit, Meetings oder den Alltag zu Hause – diese Immobilie vereint Funktionalität und Komfort.
Wir weisen darauf hin, dass zwischen dem Vermittler und dem zu vermittelnden Dritten ein familiäres oder wirtschaftliches Naheverhältnis besteht.
Der Immobilienmakler erklärt, dass er – entgegen dem in der Immobilienwirtschaft üblichen Geschäftsgebrauch des Doppelmaklers – einseitig nur für den Vermieter tätig ist.
Infrastruktur / Entfernungen
Gesundheit
Arzt
Flächen
Merkmale
- Terrasse
Grundriss





























































































































































































































































































