- Miete
- Wohnung
Objekttyp
WohnungZimmer
4Badezimmer
2Eckdaten
- Immobilien-ID:7618/903
- Zustand:Erstbezug
- Wohnfläche:105.75m2
- Zimmer:4
Beschreibung
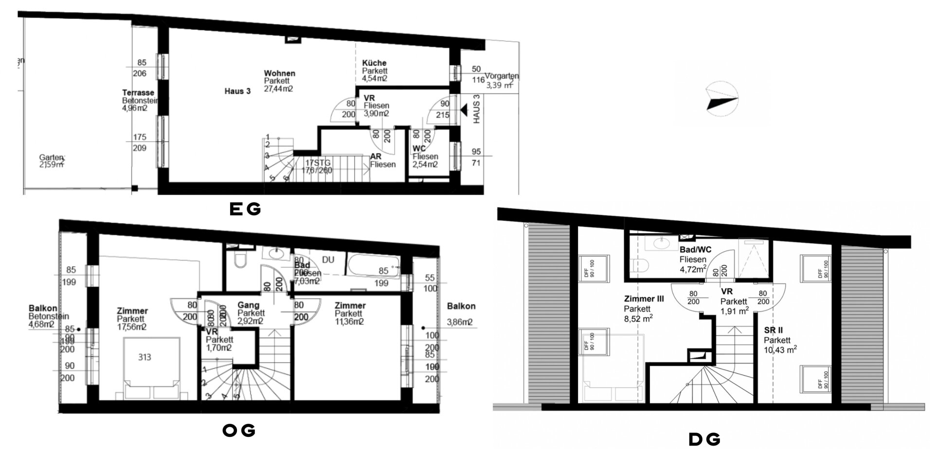
Dieses moderne Reihenhaus erstreckt sich über drei Etagen sowie einen privaten Garten und bietet eine durchdachte Raumaufteilung, hochwertige Bauweise und ein ruhiges Wohnumfeld im Grünen.
Im Erdgeschoss befindet sich der großzügige Wohnbereich mit direktem Zugang zur Terrasse und in den Garten. Die Küche ist optimal in den Wohnraum integriert. Zusätzlich gibt es einen Vorraum, ein separates WC und einen Abstellraum.
Das Obergeschoss umfasst zwei Schlafzimmer. Ergänzend gibt es ein großes Badezimmer mit WC.
Im Dachgeschoss befindet sich noch eine Schlafzimmer mit eigenem Schrankraum und Badezimmer.
Ein PKW-Stellplatz kann auf Wunsch zusätzlich angemietet (60 Euro pro Monat) werden.
!!!!!!!! Das Haus befindet sich derzeit im belagsfertigen Zustand. Sobald ein geeigneter Mieter gefunden ist, erfolgt die komplette Fertigstellung innerhalb von 4 Wochen – danach wird das Haus schlüsselfertig und bezugsbereit an die neuen Bewohner übergeben.
!!! Bitte beachten Sie: Einige der beigefügten Bilder sind Visualisierungen und dienen zur besseren Vorstellung des möglichen Zustands
Highlights
*
Massivbauweise
*
Fußbodenheizung
*
Energieeffiziente Luftwärmepumpe
*
Dreifachverglaste Fenster
*
Helle Wohnräume
*
Privater Garten & Terrasse
*
Stellplatz optional anmietbar
*
Erstbezug nach Fertigstellung
*
Provisionsfrei
Dieses Projekt bietet moderne Reihenhäuser in hochwertiger Neubauqualität, ideal für Familien und alle, die eine ruhige Wohnlage mit ausgezeichneter Infrastruktur schätzen. Die Kombination aus privaten Gärten, gut durchdachten Grundrissen und guter Verkehrsanbindung macht das Projekt zu einer attraktiven Wohngelegenheit im wachsenden Bezirk Donaustadt.
2200 EUR pro Monat, inkl. Betriebskosten. Strom, Heizkosten und Internet werden vom Mieter separat bezahlt.
Kaution: je nach Mieterprofil 3–6–12 Monatsmieten.
Wir würden uns über ein persönliches Gespräch mit Ihnen sehr freuen!
Weitere verfügbare Wohneinheiten mit zahlreichen aktuellen TOP Projekten! Mehr Details findet Sie auf unsere Homepage!
www.vigoimmobilien.at
Wir weisen darauf hin, dass zwischen dem Vermittler und dem zu vermittelnden Dritten ein familiäres oder wirtschaftliches Naheverhältnis besteht.
Der Immobilienmakler erklärt, dass er – entgegen dem in der Immobilienwirtschaft üblichen Geschäftsgebrauch des Doppelmaklers – einseitig nur für den Vermieter tätig ist.
Infrastruktur / Entfernungen
Gesundheit
Arzt
Merkmale
- Terrasse
- Garten
Energieausweis
- EPART: BEDARF
- FGEE-Klasse: A
- FGEE-Wert: 0.75
- HWB-Klasse: B
- HWB-Wert: 38.5
Grundriss
