- Kauf
- Wohnung
Objekttyp
WohnungZimmer
3Badezimmer
1Eckdaten
- Immobilien-ID:736
- Wohnfläche:110.15m2
- Zimmer:3
Beschreibung
Ganz oben ist Ihnen Ihr privater Platz an der Sonne reserviert.
Traumhafte Penthouse Wohnung hoch über den Dächern von Salzburg, mit herrlichem Naturpanorama und Sicht auf die traumhafte Bergwelt Salzburgs.
Das harmonische Konzept überzeugt mit perfekt konzipierten Grundrissen, edlen Fassaden, hochwertiger Bauweise und einer qualitativ hochwertigen Ausstattung.
In diesem Penthouse wurde weder an Qualität noch an Platz gespart. Betreten Sie dieses luxuriöse Schmuckstück über Ihren eigenen Zugang vom Lift und lassen Sie sich vom exquisiten Interieur, der durchdachten Raumaufteilung und dem Naturmoment auf der schönen Panoramaterrasse verzaubern.
Die innere Großzügigkeit von ca. 110 m² Wohnfläche erweitert sich in den beeindruckenden Außenbereich - auf die 105 m² große Panoramaterrasse mit imposantem Fernblick auf die Stadt Salzburg. Hier kann man seinen Blick und seine Gedanken freien Lauf lassen und herrliche Verweilstunden im freien beliebig verbringen. Das hochwertige Wohnerlebnis offeriert einen lichtdurchfluteten Wohnraum mit offener Wohnküche und integrierter Speisekammer/Abstellraum.
Die Atemberaubende 360° Panoramaterrasse Vermittelt Freiheit und Exklusivität. Genießen sie wunderschöne Sonnenstunden sowie traumhafte Sonnenuntergänge.
Die Terrasse verfügt über zwei Wasseranschlüsse sowie eine Auffangmöglichkeit für Regenwasser und auch einem Whirlpool steht laut Statik nichts im Wege. Hochwertige Steingutfliesen 100 x 100 perfektionieren diesen Terrassentraum.
Ein besonderer Glanzpunkt ist die solide, massiv gebaute Dachterrassen Pergola die individuell verstellbar ist und jeder Witterung, ob Sonne, Regen oder Wind standhält.
Genießen sie ihre Abendstunden in angenehmem Licht der integrierten Beleuchtung. Das ganze System ist einfach und mühelos elektrisch bedienbar.
Die Geräumigkeit von 7,50 Breite mit einer Ausladung von 3 Metern spricht für sich.
Der Wohntraum bietet selbstverständlich einen eleganten Schlafbereich mit großzügigem Badezimmer und eigenem Zugang zur Terrasse.
Eine weitere Räumlichkeit steht zur individuellen Nutzung als Kinderzimmer, Gästezimmer oder Büro zur Verfügung.
Die Liegenschaft unterliegt dem Baurechtswohnungseigentum auf 99 Jahre, der Baurechtszins beträgt ca. € 490 inkl. 20% USt.
Infrastruktur / Entfernungen
Gesundheit
Arzt
Merkmale
- Terrasse
Energieausweis
- EPART: BEDARF
- FGEE-Klasse: A+
- FGEE-Wert: 0.63
- HWB-Klasse: B
- HWB-Wert: 33
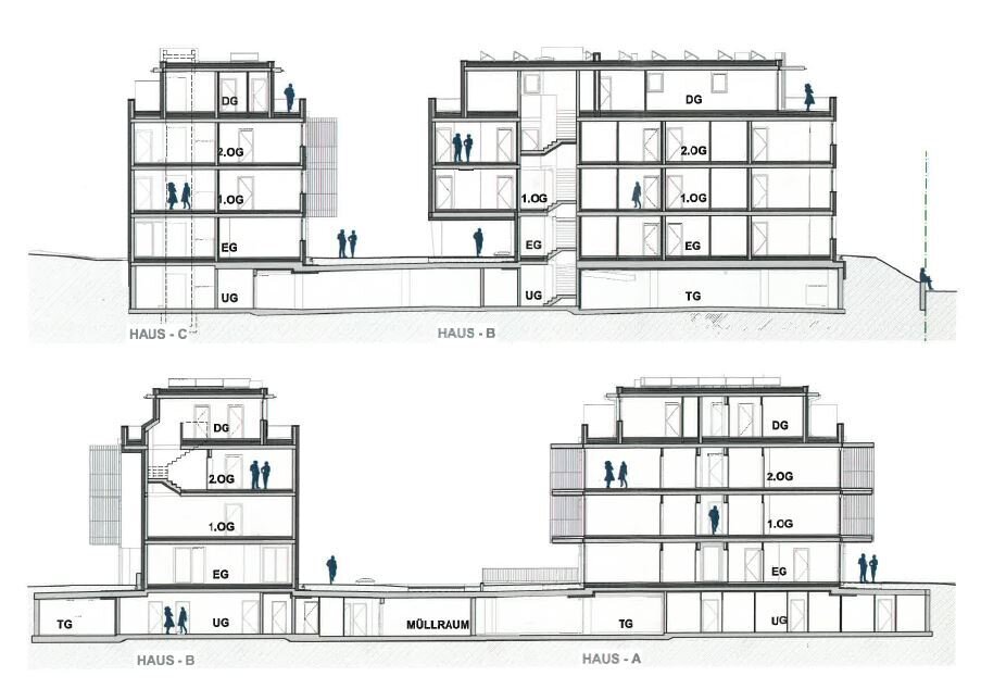
Grundriss























