- Miete
- Büro und Praxen
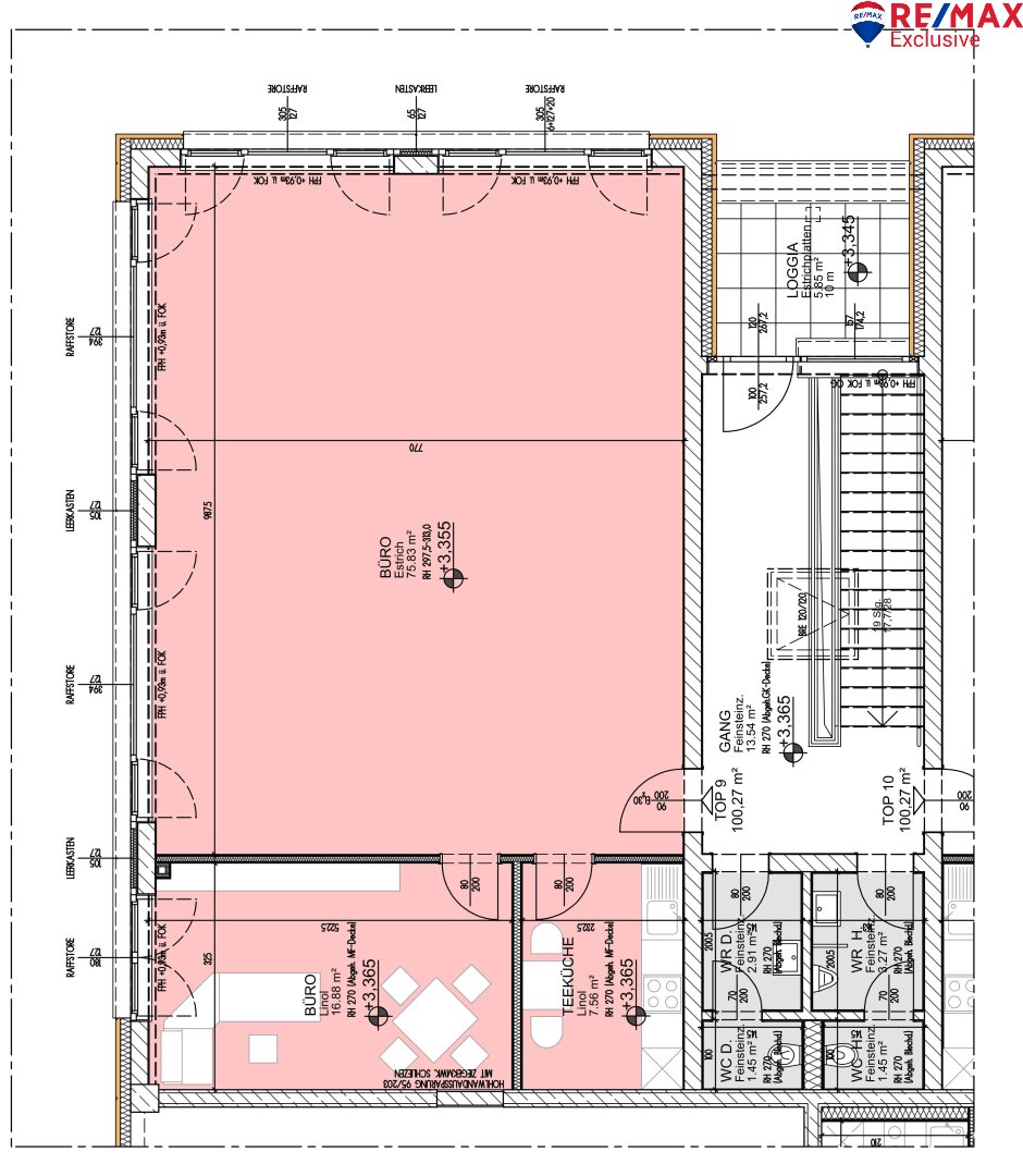
Workbase - 100 m² Büro im EG
Objekttyp
Büro und PraxenZimmer
2Eckdaten
- Immobilien-ID:3135
- Zustand:Gepflegt
- Nutzfläche:100.27m2
- Zimmer:2
Beschreibung
Workbase - 100 m² Büro im 1.OG
Zur Vermietung gelangt ein modernes, lichtdurchflutetes Büro im 2018 erbauten "workbase - der Wiirtschaftspark".
Das Objekt wird unmöbliert übergeben.
Das Büro im 1. OG verfügt über ca. 100 m² sowie einer Einbauküche.
Darüber hinaus wird geboten:
* LWL Anbindung direkt im Mietobjekt vorhanden
* umlaufende Kabelkanäle inkl. strukturierte IT Verkabelung und 19‘‘ Rack mit Patchfelder
* Klimatisierung: 3 Split- Klimageräte deckenintegriert
* Teppichboden im Hauptbüro
* Kleinküche voll ausgestattet inkl. Geschirrspüler, Kühlschrank, Backrohr & Weinkühlschrank
* Beschattung aller Fenster elektrisch
* LED Beleuchtung bildschirmarbeitsplatztauglich
* ein Parkplatz längsseits des Bürobereichs ist im Mietpreis enthalten
Die Nassgruppen sind grundsätzlich im Allgemeinbereich und werden mit dem danebenliegenden Top geteilt.
Gesamtmiete: € 1.836,92 inkl. BK, HK und USt.
Weitere Parkplätze können je nach Verfügbarkeit um netto € 40,-- zzgl. 20 % USt. je Parkplatz dazu gemietet werden.
Befristung: unbefristet
Kündigungsfrist: 6 Monate zum Quartalsende
Kündigungsverzicht: 3 Jahre
Kaution: 3 BMM
Provision: 3 BMM
Gewährleistung:
Die Verkäuferseite gewährleistet, dass der Vertragsgegenstand ihr unbeschränktes Eigentum und frei von Geldlasten, Bestandrechten und sonstigen Rechten Dritter ist.
Ansonsten wird jede Gewährleistung der Verkäuferseite ausgeschlossen und festgestellt, dass sich dieser Gewährleistungsausschluss sowohl auf bestimmte als auch auf gewöhnlich vorausgesetzte Eigenschaften des Vertragsgegenstandes wie beispielsweise Lage, Größe, Zustand, Abnützung, Widmung, Beschaffenheit, Ertrag und Verwendungsmöglichkeit bezieht.
Aufgrund der Nachweispflicht gegenüber dem Eigentümer ersuchen wir um Verständnis, dass nur Anfragen mit der Angabe der vollständigen Anschrift und Telefonnummer bearbeitet werden können.
Wir weisen auf Ihre 14-tägige Rücktrittsfrist (gemäß § 11 FAGG ) hin. Um Ihre Rechte zu wahren, können nur Anfragen mit vollständigen Kontaktdaten (Name, Adresse, Telefon, Email) beantwortet werden.
Vor Ablauf der 14-tägigen Rücktrittsfrist werden wir gerne für Sie tätig, wenn Sie gesetzeskonform (FAGG) uns ausdrücklich (am einfachsten per E-Mail) dazu auffordern.
Wenn der Kaufvertrag/der Mietvertrag nicht zustande kommt, bleibt unsere Tätigkeit für Sie vollkommen kostenlos.
Der Vermittler ist als Doppelmakler tätig.
Infrastruktur / Entfernungen
Gesundheit
Arzt
Flächen
Energieausweis
- EPART: BEDARF
- FGEE-Wert: 0.66
- HWB-Klasse: C
- HWB-Wert: 10.4
Grundriss

















