- Kauf
- Büro und Praxen
Objekttyp
Büro und PraxenEckdaten
- Immobilien-ID:638
- Wohnfläche:506.79m2
- Bürofläche:506.79m2
Beschreibung
Lage
Die FABRIK Lustenau liegt an der Rheinstraße 27 im Ortsteil Rheindorf, einer angenehm ruhigen und gleichzeitig hervorragend erreichbaren Lage. In direkter Umgebung befinden sich Bushaltestellen, Einkaufsmöglichkeiten, Gastronomie, der Bahnhof „Lustenau Markt“ sowie diverse Dienstleister. Auch die Anbindung an die Schweiz und die Rheintalautobahn ist ideal.
Das architektonisch markante Ensemble verbindet historischen Charme mit moderner Funktionalität. Die lichtdurchflutete Bauweise, eine zentrale Lichtkuppel im Stiegenhaus sowie die großzügige Verglasung sorgen für helle, inspirierende Arbeitsräume. Der gepflegte Standort bietet eine repräsentative Umgebung für unterschiedlichste Unternehmensbereiche.
Immobilie
Zum Verkauf steht eine vielseitig nutzbare Büroeinheit mit rund 507 m² Bürofläche auf zwei Ebenen, zusätzlichen Lagerräumen mit 38 m² im Untergeschoss und 12 KFZ-Stellplätze in der Tiefgarage.
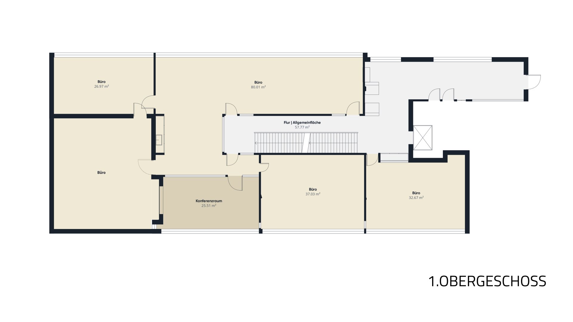
Die Büroeinheiten befinden sich im 1. und 2. Obergeschoss der FABRIK Rheinstraße 27 und sind aktuell zum großen Teil vermietet.
Im 1. Obergeschoss ist das Freiraumbüro untergebracht. Dies ist ein durchdachtes Konzept für kleine Unternehmen, Selbstständige und kreative Köpfe. Die Fläche umfasst drei Einzelbüros sowie sechs Arbeitsplätze im offenen Großraumbereich. Die Vermietung der Schreibtische/Büros erfolgt auf drei Jahre mit monatlicher Kündigungsmöglichkeit.
Ausstattungsdetails im 1. Obergeschoss:
*
Höhenverstellbare Schreibtische
*
Klimaanlage
*
Beleuchtung von Zumtobel
*
Gemeinschaftsküche mit Stauraum und Ausstattung
*
Teppichböden, Vorhänge und akustische Schallschutzelemente
*
Zugang und Nutzung von WLAN, Drucker, Scanner, Konferenzraum
*
Großzügige Allgemeinflächen mit getrennten Sanitäranlagen, Sitzmöbelnischen und Cafeteria
Im 2. Obergeschoss sind zwei separat abgeschlossene Einheiten an Unternehmen aus den Bereichen Marketing/Design und Medizintechnik vermietet.
Alle Räume verfügen über Klimaanlagen und viel Tageslicht.
Nutzung
Die Immobilie eignet sich sowohl als Investmentobjekt mit attraktiver Teilvermietung als auch zur Eigen- oder gemischten Nutzung. Dank der modularen Raumgestaltung und flexiblen Trennwände lassen sich vielfältige Raumkonzepte umsetzen. Vom klassischen Büro bis zum Co-Working-Modell.
Ausstattung im Überblick
*
Klimaanlage in allen Räumen
*
Moderne Beleuchtung (Zumtobel)
*
Teppichböden & akustische Elemente
*
Höhenverstellbare Arbeitsplätze & Konferenztisch
*
Gemeinschaftsküche im 1. OG
*
Konferenzraum
*
WLAN, Scanner, Drucker (für Freiraumbüro nutzbar)
*
Lagerräume im Untergeschoss
*
12 Tiefgaragenplätze
*
Lift, barrierefreier Zugang
*
Lichtkuppel im Treppenhaus, viel Glas, helle Räume
Attraktive Kapitalanlage mit Entwicklungspotenzial
Die Büroeinheiten in der FABRIK Lustenau erwirtschaften derzeit einen jährlichen Nettomietertrag von rund 96.000 € bei zusätzlich rund 26.800 € an Betriebskosten. Beim aktuellen Kaufpreis von 1.950.000 € ergibt sich daraus eine Bruttomietrendite von ca. 5 %, was dieses Objekt im aktuellen Marktumfeld zu einer sehr attraktiven Anlagemöglichkeit macht.
Der Mieter-Mix umfasst solide Unternehmen aus den Bereichen Medizintechnik, Design, Digitalisierung und Coaching. Zusätzlich bietet das flexibel nutzbare Freiraumbüro mit Co-Working-Struktur langfristige Mieteinnahmen bei gleichzeitig monatlicher Kündbarkeit. Die Mieten liegen je nach Einheit zwischen 11,90 €/m² und 14,13 €/m² netto, das Umfeld ist gepflegt und infrastrukturell bestens erschlossen. Die hochwertige Ausstattung, inklusive Klimatisierung, Schallschutz, moderner Netzwerktechnik und 12 Tiefgaragenplätzen rundet dieses nachhaltige Investmentpaket ab.
Kaufpreis
Bürofläche auf 2 Etagen 507 m²
1.486.000 €
PKW-Stellplatz Tiefgarage
22.000 €
11 Stk. PKW Stellplätze
242.000 €
Gesamtpreis zzgl. Nebenkosten
1.750.000 €
Noch nichts gefunden? Wir informieren Sie über geeignete Immobilienangebote noch vor allen anderen.
Legen Sie jetzt Ihren individuellen Suchagenten unter folgendem Link an. Wir schicken Ihnen passende Immobilien exklusiv vorab zu.
Suchagent anlegen [https://waelderimmo.service.immo/registrieren/de] - https://waelderimmo.service.immo/registrieren/de
Der Vermittler ist als Doppelmakler tätig.
Energieausweis
- EPART: BEDARF
- FGEE-Klasse: C
- FGEE-Wert: 1.07
- HWB-Klasse: C
- HWB-Wert: 69
Grundriss









