- Kauf
- Haus
Objekttyp
HausZimmer
4Badezimmer
1Eckdaten
- Immobilien-ID:4134/717
- Zustand:Gepflegt
- Wohnfläche:120.09m2
- Zimmer:4
Beschreibung
Diese charmante Doppelhaushälfte vereint modernes Wohnen mit naturnahem Lebensgefühl in Ruhelage auf über 120 m² Wohnfläche.
Auf zwei Ebenen erwarten Sie vier helle Zimmer, darunter eine großzügige Wohn-Essküche,
die zum geselligen Beisammensein einlädt. Zwei stilvolle Bäder, eines davon mit WC, sowie ein separates WC, sorgen für höchsten Komfort. Die sonnige Terrasse im Obergeschoss bietet mit ca. 14.5 m² Fläche perfekte Möglichkeiten für entspannte Stunden im Freien und Blick auf den vorgelagerten Garten. Hochwertige Fliesenböden unterstreichen das gepflegte Ambiente dieser Immobilie.
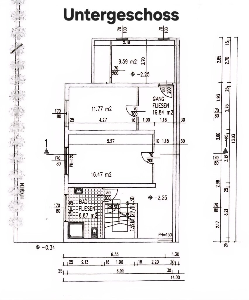
Die Raumaufteilung:
Obergeschoß:
* Wohnküche
* WC mit Handwaschbecken
Untergeschoß:
* 3 Zimmer
* 1 großer Abstellraum mit Fenster (ev. kl. Büro)
* Bad / WC
* Gang
PKW-Abstellbereich: für ca. 4 Fahrzeuge
Wir weisen darauf hin, dass zwischen dem Vermittler und dem zu vermittelnden Dritten ein familiäres oder wirtschaftliches Naheverhältnis besteht.
Der Vermittler ist als Doppelmakler tätig.
Infrastruktur / Entfernungen
Gesundheit
Arzt
Merkmale
- Terrasse
Energieausweis
- EPART: BEDARF
- FGEE-Klasse: C
- FGEE-Wert: 1.32
- HWB-Klasse: D
- HWB-Wert: 110.8
Grundriss











