- Miete
- Wohnung
Objekttyp
WohnungZimmer
3Badezimmer
1Eckdaten
- Immobilien-ID:4014
- Zustand:Neuwertig
- Wohnfläche:93.99m2
- Nutzfläche:93.99m2
- Zimmer:3
Beschreibung
Unmittelbar bei der Börse und beim Hermann-Gmeiner-Park in einem wunderschönen, im historischen Stil erbauten Haus mit gegliederter Fassade kommt diese in den Jahren 2009/10 erbaute, sonnendurchflutete Dachgeschosswohnung mit großzügiger Terrasse zur unbefristeten Vermietung. Das in den Jahren 1872-1873 erbaute Gebäude besitzt ein äußerst repräsentatives Foyer mit einer bemerkenswerten Deckenlaterne aus Schmiedeeisen, Ätzglasverzierung und Kronenaufsatz.
Vom zentralen Eingangsbereich erreicht man den grosszügigen Wohn-Ess-Bereich mit Split-Level-Charakter. Die offene Wohnküche ist mit einer modernen Maß-Einbauküche ausgestattet. Über drei Stufen erreicht man den beeindruckenden Wohnsalon mit Panoramaverglasung und vorgelagerter Terrasse. Das Dachgeschoss verfügt über zwei Schlafzimmer, ein Tageslicht-Wannenbad, eine separate Toilette und einen Schrankraum.
Der absolute Top-Zustand dieser Terrassen-Wohnung, die perfekte Raumaufteilung sowie das großzügige Wohnkonzept sprechen für sich selbst und verbinden Luxus mit modernem Design.
Der Wohnung ist ein Kellerabteil zugeordnet.
+ Ausrichtung Süd-Ost
+ erstes Dachgeschoss ohne Schrägen mit Penthouse-Charakter
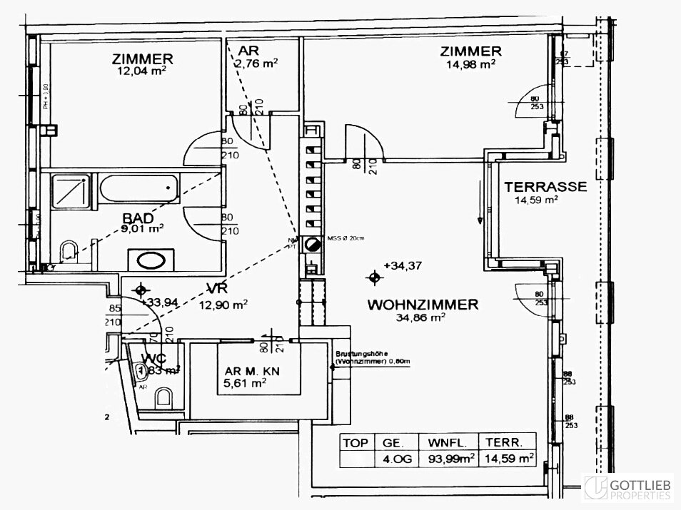
+ ca. 93,99 m2 Wohnfläche
+ ca. 14,59 m2 Terrasse auf der Wohnebene
+ ca. 34,86 m2 Wohn-Ess-Bereich mit Ausgang auf die Terrasse
+ ca. 5,61 m2 offene Wohn-Küche
+ ca. 14,96 m2 Schlafzimmer mit Ausgang auf die Terrasse
+ ca. 12,04 m2 weiteres Schlafzimmer
+ ca. 9,01 m2 Tageslichtbad
+ ca. 2,76 m2 Schrankraum
+ ca. 1,83 m2 Gäste-Toilette
+ ca. 12,90 m2 Vorzimmer
AUSSTATTUNG
+ hochwertige Parkettböden
+ Fußbodenheizung
+ exquisite Maß-Einbauküche mit Geräten der Marke "Miele" u.a.
+ Tageslicht-Wannenbad mit Dusche, Waschbecken, Waschmaschinenanschluss und Toilette
+ separate Toilette
+ Klimaanlage in den Wohn- und Schlafräumen
+ Außenjalousien
+ Gegensprechanlage mit Display
+ der Wohnung ist ein Kellerabteil zugeordnet
VERKEHRSANBINDUNG
+ U-Bahn-Linien U2, U4
+ Strassenbahn-Linien 1, 37, 38, 40, 41, 42, 43, 44, 71, D
+ Bus-Linien 1A, 2A, 3A
INFRASTRUKTUR
Die loftartige, luxuriöse Wohnung befindet sich unweit der Börse sowie nahe der Wipplinger Strasse. Das vielfältige kulinarische Angebot an guten Restaurants in absoluter Gehnähe wurde in den letzten Jahren kontinuierlich erweitert und darüberhinaus bietet der "Holmes Place Fitness Club" ein reichhaltiges Freizeit- und Wellnessangebot.
Der Hohe Markt, der Graben, der Kohlmarkt sowie der Tuchlauben mit ihren vielfältigen Einkaufsmöglichkeiten (Billa Plus Hoher Markt, Spar, Billa, Hofer) und Luxus Boutiquen, mehreren Eissalons, Delikatessenläden, Cafés, Restaurants und Bars sind fußläufig erreichbar. Ebenso befinden sich mehrere Volksschulen und Gymnasien in unmittelbarer Gehnähe.
Der Graben, der als Fußgängerbereich platzartig gestaltet wurde, fungiert als Flanierstraße und bildet mit Kärntner Straße und Kohlmarkt das „goldene U“ des Wiener Handels.
Als Naherholungsgebiete sind der Hermann-Gmeiner-Park, der Burggarten, der Volksgarten, der Stadtpark und der nahegelegene Prater sehr beliebt.
SONSTIGES
Wir ersuchen um Verständnis, dass wir aufgrund unserer Nachweispflicht gegenüber dem Eigentümer nur Anfragen mit vollständigen Kontaktdaten (Name, Adresse, Mobilnummer, Email) bearbeiten können.
Wir weisen darauf hin, dass zwischen dem Vermittler und dem zu vermittelnden Dritten ein familiäres oder wirtschaftliches Naheverhältnis besteht.
Der Immobilienmakler erklärt, dass er – entgegen dem in der Immobilienwirtschaft üblichen Geschäftsgebrauch des Doppelmaklers – einseitig nur für den Vermieter tätig ist.
Infrastruktur / Entfernungen
Gesundheit
Arzt
Merkmale
- Terrasse
Energieausweis
- EPART: BEDARF
- HWB-Klasse: B
- HWB-Wert: 43
Grundriss





