- Kauf
- Haus
Erstbezug! Doppelhaushälften in massiver Holzbauweise
Objekttyp
HausZimmer
5Badezimmer
2Eckdaten
- Immobilien-ID:1972
- Zustand:Erstbezug
- Wohnfläche:120.92m2
- Zimmer:5
Beschreibung
Mit hervorragendem Preis-Leistungs-Verhältnis entstehen acht hochwertige Doppelhaushälften in Langenzersdorf mit günstiger monatlicher Pacht von nur monatlich € 192.- !
Projektbeschreibung
Nur wenige Minuten von Wien entfernt, werden in nachhaltiger Massivholzbauweise moderne Doppelhaushälften errichtet. Das Projekt vereint ökologisches Wohnen, moderne Architektur und höchsten Wohnkomfort – ideal für Familien und anspruchsvolle Paare.
Die durchdachte Bauweise, praktische Planung und hochwertige Ausstattung sorgen für ein gesundes Raumklima und energieeffizientes Wohnen auf höchstem Niveau.
Die Übergabe der belagsfertigen Häuser ist mit Anfang 2027 geplant!
Ausstattung
Massivholzbauweise (CLT) – natürlich, nachhaltig und langlebig
Dreifach verglaste Kunststoff-Alu Fenster für optimale Wärmedämmung und Schallschutz, großzügige Hebe-Schiebetüre
Luftwärmepumpe (230Liter Warmwasserspeicher) – umweltfreundliche, energieeffiziente Heiztechnik
Vollwärmeschutzfassade mit 22 cm Dämmstärke
elektrische Rollläden
Fußbodenheizung in allen Wohnräumen
Durchdachte Grundrisse mit lichtdurchfluteten Wohnbereichen und großzügigen Freiflächen
Raumhöhe 270 cm im Erdgeschoß
Terrasse und Garten (ca. 121,40 - ca. 213 m²)
Eine schlüsselfertige Ausführung ist gegen Aufpreis möglich
Lage
Langenzersdorf liegt direkt an der nördlichen Stadtgrenze zu Wien und bietet die perfekte Kombination aus städtischer Nähe und ländlicher Idylle.
Die Verkehrsanbindung ist hervorragend: die S-Bahnstation "Bisamberg" ist in wenigen Minuten fußläufig erreichbar, die Buslinie 850 (Bhf Floridsdorf - Bhf Korneuburg) unweit entfernt und Autobahnanbindung (A22, B3) in unmittelbarer Nähe.
Infrastruktur
Schulen, Kindergärten und medizinische Versorgung im Ort
Nahversorger, Cafés und Restaurants hervorragend erreichbar
Reichhaltiges Freizeitangebot mit Donauinsel, Seeschlacht, Bisamberg, Rad- und Wanderwegen in unmittelbarer Nähe
Langenzersdorf überzeugt durch seine hohe Lebensqualität – ein Ort, an dem sich urbanes Leben und Natur harmonisch verbinden.
Baurecht
Vertragslaufzeit bis 2105, 60 jähriger Kündigungsverzicht seitens des Stifts Klosterneuburg
Monatlicher Baurechtszins von nur EUR 1,56 pro/m² Wohn-Nutzfläche, 2x pro Jahr an das Chorherrenstift Klosterneuburg zu entrichten.
Abwicklung
Treuhänderin ist Mag. Marlene Krüger, die Vertragsabwicklung kostet 1,5% zzgl. 20% MwSt. und beinhaltet Kaufvertrag, Geldwäscheprüfung und Treuhandschaft.
Pfandrechtliche Sicherstellungen für die finanzierende Bank werden gesondert verrechnet, sofern diese notwendig sind.
Sonstiges
Die Anschlusskosten (Wasser, Kanal, Strom) i.H.v. € 7.980,- sind separat zu bezahlen.
"Belagsfertig" bedeutet, dass die Wand-, Decken- und Bodenbeläge sowie Armaturen noch auf die vom Bauträger vorbereiteten Untergründe aufgetragen werden müssen. Die belagsfertige Variante läßt den Käufern den größtmöglichen Spielraum bei der individuellen Wahl der Ausgestaltung der Belagsflächen bei gleichzeitiger Reduktion der Nebenkosten des Kaufes.
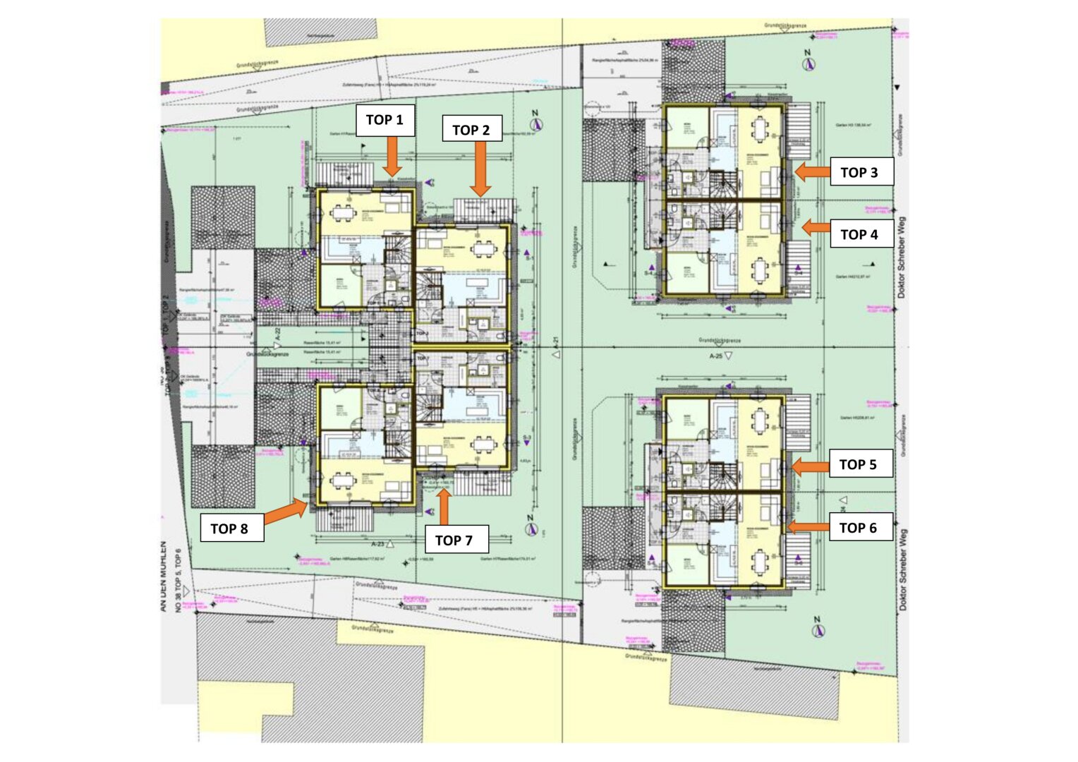
Haus 4 wird in belagsfertigem Zustand angeboten und verfügt über ca. 120 m² Wohnfläche, 5 Zimmern und Nebenräumen auf 2 Geschoßen.
Raumaufteilung im Erdgeschoß / Wohnbereich: Eingangsbereich, Technikraum, Büro, großzügiger Wohn-Essbereich mit Küche und Ausgang auf die Terrasse, 1 WC mit Anschlussvorbereitung für ein Handwaschbecken und eine Dusche
Raumaufteilung im Obergeschoß/ Ruhebereich: Flur mit zentral begehbaren Zimmern, davon 2 Kinder/Schlaf/Homeoffice/Zimmer, 1 Master- Bedroom mit Schrankraum, 1 großes Badezimmer (Vorbereitung für Waschtisch, Badewanne, Dusche & WC)
Terrassen/Gartenflächen: ca. 220 m²
Stellplätze: 2 vorgeschriebene Stellplätze sind im Kaufpreis inkludiert und zugeordnet
Hinweis gemäß Energieausweisvorlagegesetz: Ein Energieausweis wurde vom Eigentümer bzw. Verkäufer, nach unserer Aufklärung über die generell geltende Vorlagepflicht, sowie Aufforderung zu seiner Erstellung noch nicht vorgelegt. Daher gilt zumindest eine dem Alter und der Art des Gebäudes entsprechende Gesamtenergieeffizienz als vereinbart. Wir übernehmen keinerlei Gewähr oder Haftung für die tatsächliche Energieeffizienz der angebotenen Immobilie.
Der Vermittler ist als Doppelmakler tätig.
Infrastruktur / Entfernungen
Gesundheit
Arzt
Merkmale
- Terrasse
- Garten
Grundriss






























































































































































































































































































































































































































































































































































































































































































































