- Kauf
- Haus
Objekttyp
HausZimmer
4Badezimmer
2Eckdaten
- Immobilien-ID:1755
- Zustand:Neuwertig
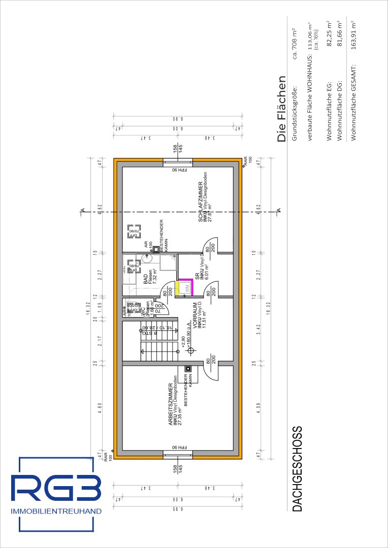
- Wohnfläche:163.91m2
- Zimmer:4
Beschreibung
PROVISIONSFREI! NEUWERTIGES EINFAMILIENHAUS MIT GROSSEM GARTEN IN RUHELAGE
Dieses Haus ist kein Neubau von der Stange, sondern ein Zuhause, das mit viel Gefühl und Qualität erneuert wurde. Auf rund 164 m² Wohnfläche und einem Grundstück von 702 m² bietet es Platz, Luft und ein gutes Wohngefühl.
Das Gebäude wurde 1994 errichtet und ist bis dato in einem perfekten Substanzzustand. 2025 wurde es komplett generalsaniert und technisch wie optisch auf aktuellem Stand gebracht:
Fußbodenheizung, neue Luftwärmepumpe, moderne EDV-Verkabelung (Cat 7), Glasfaseranschluss, Dreifachverglasung mit Alu-Rollläden und eine Photovoltaikanlage für niedrige Energiekosten und eine RainBird Beregnungsanlage für den Garten.
Momentan sind wir in der Endfertigstellung.
Die Räume sind zentral begehbar, hell und freundlich. Zwei Bäder, zwei Toiletten davon ein Gäste-WC und viel Stauraum machen das Haus auch alltagstauglich für Familien.
Die Materialien – INKU Vinyl Designboden, Fliesen, Kunststofffenster mit 3fachverglasung und Alu-Rolläden – sind hochwertig und pflegeleicht.
Draußen erwartet dich ein großer, sonniger Garten mit rund 590 m², Platz für Terrasse, Gemüsebeet oder Pool.
Zwei Stellplätze befinden sich direkt vor dem Haus.
Ebersdorf an der Zaya bei Mistelbach ist ein ruhiges, typisch Weinviertler Straßendorf – eingebettet zwischen Feldern, Kellergassen und sanften Hügeln.
Nach Mistelbach oder Wilfersdorf sind es nur wenige Minuten.
Sofort beziehbar.
Ein Haus für Menschen, die lieber Qualität als Schlagworte suchen.
Klar, modern, solide – wie man es sich wünscht
Der Vermittler ist als Doppelmakler tätig.
Infrastruktur / Entfernungen
Gesundheit
Arzt
Merkmale
- Garten
Energieausweis
- EPART: BEDARF
- FGEE-Klasse: B
- FGEE-Wert: 0.87
- HWB-Klasse: C
- HWB-Wert: 75
Grundriss






