- Kauf
- Haus
Objekttyp
HausZimmer
3Badezimmer
1Eckdaten
- Immobilien-ID:2493
- Zustand:Sanierungsbeduerftig
- Wohnfläche:87.71m2
- Nutzfläche:144m2
- Zimmer:3
Beschreibung
Charmantes Eckhaus mit großem Ausbaupotenzial – Rohdachboden & vielseitigem Untergeschoss
Dieses Haus aus dem Jahr 1920 befindet sich auf einem Eckgrundstück und bietet viel Raum für individuelle Gestaltungsideen. Mit Erdgeschoss, Untergeschoss sowie einem ca. 77 m² großen, ausbaufähigen Rohdachboden eröffnet die Liegenschaft zahlreiche Möglichkeiten für Eigennutzer oder Investoren.
Wohnnutzfläche: 153,73 m²
Der Garten (40m²) überzeugt durch seine praktische Gestaltung und verfügt über drei separate Zugänge: direkt vom Haus, von der Straße sowie von den Parkplätzen – ideal für flexible Nutzung.
Erdgeschoss (ca. 77 m²):
*
Vorraum
*
Wohnküche (ca. 20 m²)
*
Schlafzimmer (ca. 24 m²)
*
Weiteres Zimmer (ca. 9 m²)
*
Badezimmer mit Badewanne
*
Separates WC
*
Abstellraum mit Zugang zum Untergeschoss und Dachboden
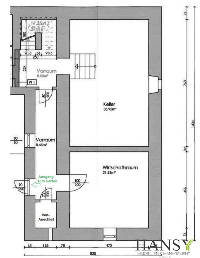
Untergeschoss (ca. 76 m²):
Der Gang sowie ein Raum mit ca. 21 m² sind beheizt und belichtet. Das Untergeschoss eignet sich besonders als Fitnessraum, Hobbyraum, Werkstatt oder Lagerfläche.
Dachboden:
*
Ca. 77 m² großer Rohdachboden mit attraktivem Ausbaupotenzial
Zustand:
*
Das Haus ist sanierungsbedürftig, bietet dafür jedoch eine solide Basis und viel Entwicklungsspielraum.
Heizung:
*
Gasetagenheizung
Diese Liegenschaft vereint Charakter, großzügige Flächen und Ausbaureserven in guter Lage – ideal für alle, die ein Haus nach eigenen Vorstellungen gestalten möchten.
Zögern Sie nicht länger und rufen Sie mich gleich an. Ich freue mich auf Ihren Anruf!
Infrastruktur / Entfernungen
Gesundheit
Arzt
Merkmale
- Garten
Energieausweis
- EPART: BEDARF
- FGEE-Klasse: F
- FGEE-Wert: 3.32
- HWB-Klasse: G
- HWB-Wert: 327
Grundriss






