- Kauf
- Wohnung
Objekttyp
WohnungZimmer
5.5Eckdaten
- Immobilien-ID:3812/360
- Zustand:Teil_vollrenovierungsbed
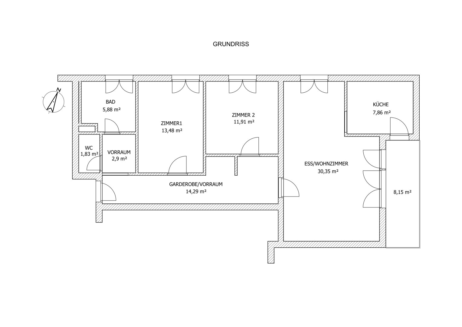
- Wohnfläche:87m2
- Zimmer:5.5
Beschreibung
WOHNEN MIT GESTALTUNGSSPIELRAUM – 88,6 M² ERDGESCHOSSWOHNUNG MIT BALKON IN ATTRAKTIVER LAGE
Diese großzügig geschnittene 88,6 m² Erdgeschosswohnung bietet Ihnen die ideale Grundlage, um Ihre ganz persönlichen Wohnvorstellungen zu verwirklichen. Die Immobilie befindet sich in der beliebten Paulahofsiedlungsstraße und überzeugt durch eine sehr gute Infrastruktur sowie solide energetische Kennzahlen.
Der durchdachte Grundriss schafft angenehme Raumverhältnisse mit vielseitigen Nutzungsmöglichkeiten – perfekt für Eigennutzer mit Gestaltungswunsch oder Anleger mit Blick auf Wertsteigerungspotenzial.
Ein besonderes Highlight ist der 8,15 m² große Balkon, der zusätzlichen Freiraum bietet und den Wohnbereich harmonisch erweitert.
-------------------------
SOLIDE BASIS MIT ENERGETISCHEM VORTEIL
Die Wohnung ist renovierungsbedürftig, bietet jedoch bereits eine technisch gute Grundlage:
*
HWB 87,1 kWh/m²a (Klasse C)
*
fGEE 1,33 (Klasse C)
*
3-Scheiben-Isolierverglasung
Gerade die 3-fach verglasten Fenster stellen einen wertvollen Vorteil dar – sowohl in Bezug auf Energieeffizienz als auch auf Schallschutz und Wohnkomfort. Damit konzentrieren sich künftige Modernisierungsmaßnahmen vor allem auf die optische und innenräumliche Gestaltung.
-------------------------
SEHR GUTE INFRASTRUKTUR – ALLES IN UNMITTELBARER NÄHE
Die Lage in der Paulahofsiedlungsstraße überzeugt durch ihre ausgewogene Kombination aus Wohnruhe und hervorragender Erreichbarkeit.
In unmittelbarer Umgebung befinden sich:
*
Einkaufsmöglichkeiten des täglichen Bedarfs
*
Ärzte und Apotheken
*
Schulen und Kinderbetreuungseinrichtungen
*
Gastronomiebetriebe und Cafés
*
Öffentliche Verkehrsanbindungen
*
Grünflächen und Freizeitmöglichkeiten
Die gute Anbindung ermöglicht eine schnelle Erreichbarkeit des Stadtzentrums sowie wichtiger Verkehrsknotenpunkte – ideal für Berufstätige wie auch Familien.
-------------------------
FAZIT
Diese Erdgeschosswohnung bietet eine seltene Gelegenheit:
Großzügige Wohnfläche, Balkon, solide Energiewerte und hervorragende Infrastruktur – kombiniert mit attraktivem Entwicklungspotenzial.
Ein ideales Objekt für Käufer, die nicht „von der Stange“ kaufen möchten, sondern Wert auf Individualität und nachhaltige Wertentwicklung legen.
Der Vermittler ist als Doppelmakler tätig.
Infrastruktur / Entfernungen
Gesundheit
Arzt
Flächen
Energieausweis
- EPART: BEDARF
- FGEE-Klasse: C
- FGEE-Wert: 1.33
- HWB-Klasse: C
- HWB-Wert: 87.1
Grundriss












