- Miete
- Wohnung
Objekttyp
WohnungZimmer
4Badezimmer
1Eckdaten
- Immobilien-ID:6738/148
- Zustand:Voll_saniert
- Wohnfläche:103m2
- Zimmer:4
Beschreibung
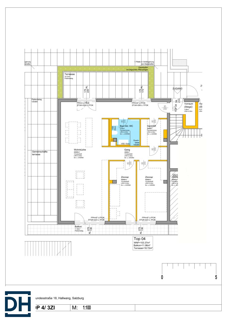
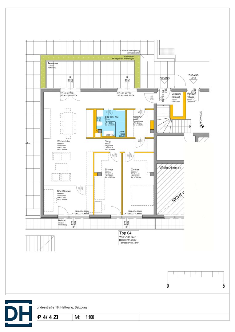
Diese bereits renovierte Wohnung besteht derzeit aus einem großen Raum mit Küche und Bad. Die Wohnung wird nach Vereinbarung je nach Wunsch des zukünftigen Mieters auf eine 3 oder 4 Zi. Wohnung umgebaut ( 3 Varianten möglich siehe Grundriss-Varianten) Dauer Umbau bis zu 3 Monaten. Besonders attraktiv sind die beiden Außenflächen: Eine schöne Terrasse zum ruhigen Innenhof lädt zum Entspannen ein, zusätzlich steht ein Balkon zur Verfügung.
Vor dem Haus befinden sich allgemeine Parkplätze, zudem besteht die Möglichkeit, eine Garage gegen € 65,-/Monat anzumieten.
Details:
- Moderne Wohnung in Ausführung 3 oder 4 Zimmer innerhalb 3 Monaten verfügbar
- ca.103 m² Wfl.
- Balkon 11,96 m²
- Terrasse 18,72 m²
- Bad mit Dusche und WC
- offene Küchenzeile
- Mietpreis inkl. BK € 1.950,00,- (inkl. BK und Heizkosten á Konto)
- Kaution 3 BMM
Für genauere Informationen und Details schicken wir Ihnen gerne ein Exposé.
IRRTUM UND ÄNDERUNGEN VORBEHALTEN!
_ALLE ANGABEN SIND OHNE GEWÄHR UND BASIEREN AUSSCHLIESSLICH AUF INFORMATIONEN, DIE UNS VON UNSEREM AUFTRAGGEBER BZW. KOOPERATIONSPARTNER ÜBERMITTELT WURDEN. _
_WIR ÜBERNEHMEN KEINE GEWÄHR FÜR DIE VOLLSTÄNDIGKEIT, RICHTIGKEIT UND AKTUALITÄT DIESER ANGABEN. ZWISCHENVERKAUF BLEIBT VORBEHALTEN._
Noch nichts gefunden? Wir informieren Sie über geeignete Immobilienangebote noch vor allen anderen.
Legen Sie jetzt Ihren individuellen Suchagenten unter folgendem Link an. Wir schicken Ihnen passende Immobilien exklusiv vorab zu.
Suchagent anlegen [https://d-h.service.immo/registrieren/de] - https://d-h.service.immo/registrieren/de
Der Immobilienmakler erklärt, dass er – entgegen dem in der Immobilienwirtschaft üblichen Geschäftsgebrauch des Doppelmaklers – einseitig nur für den Vermieter tätig ist.
Infrastruktur / Entfernungen
Gesundheit
Arzt
Merkmale
- Terrasse
Energieausweis
- EPART: BEDARF
- FGEE-Wert: 1.22
- HWB-Klasse: C
- HWB-Wert: 96
Grundriss












































































































































































































































