- Kauf
- Wohnung
Objekttyp
WohnungZimmer
3Eckdaten
- Immobilien-ID:7831/57
- Zustand:Erstbezug
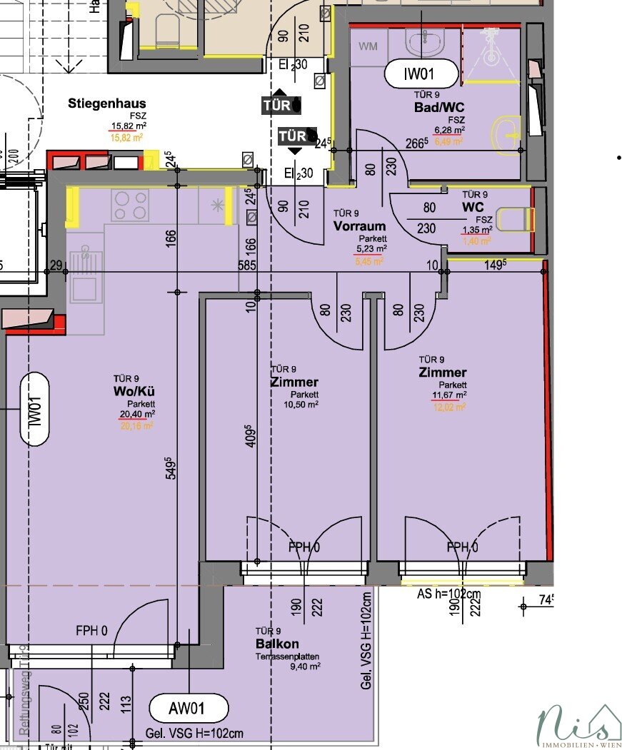
- Wohnfläche:55.43m2
- Nutzfläche:64.83m2
- Zimmer:3
Beschreibung
Neubau Projekt im Herzen von Wien Essling mit 19 schlüsselfertigen Eigentumswohnungen auf Eigengrund.
Die hochwertig ausgestatteten 2-4 Zimmer Wohnungen verfügen alle über einen Außenbereich – entweder Garten, Balkon, Terrasse oder Loggia.
Alle Einheiten werden schlüsselfertig verkauft und sind hochwertig ausgestattet.
AUSSTATTUNG:
Kunststoff / Alu Fenster mit 3-fach Verglasung
Beschattung Raffstores
Dachflächenfenster Kipp-/Schwing Fenster von Velux
Wohnungseingangstüre EI²30-C Brandschutz in Sicherheitsklasse WK 1 oder 2 mit Mehrfach Verriegelung, Türspion & Beschläge in Chrom von Firma DANA oder KUNEX
Innentüren glatt mit Beschlägen aus Chrom
Freisprechanlage (ohne Video) von Bticino oder gleichwertig
Ausstattung der Badezimmer mit Sanitärgegenständen von Laufen, Geberit, Grohe und Hans Grohe. Handtuchheizkörper mit E-Patrone.
Vorräume, Badezimmer und WC´s werden mit Feinsteinzeug Minimum Größe 60x60 cm ausgestattet.
Wohnräume, Küche – Parkett (Eiche) wird vollflächig verklebt.
Terrassenbelag – Steinplatten 120 x 60
Klimaanlagen Vorbereitung im Dachgeschoss
Energieeffiziente Luft-Wärmepumpe mit Heizzentrale im Keller
Regelung der Heizung in den Wohnungen über ein Raumthermostat
Fußbodenheizung in allen Räumen
SONSTIGES:
Kein Baurecht, kein Pachtgrund - Eigengrund
HAFTUNGSAUSSCHLUSS:
Wir weisen darauf hin, dass sämtliche Daten im vorliegenden Angebot, sowie die von unserem Büro an Sie weitergegebenen Auskünfte, vom Eigentümer der Immobilie zur Verfügung gestellt wurden. Ebenso sind Informationen von Dritten (z.B. behördliche Informationen) eingeholt worden, auch für diese können wir unsererseits keinerlei Haftung für deren uneingeschränkte Richtigkeit übernehmen.
Infrastruktur / Entfernungen
Gesundheit
Arzt
Merkmale
- Terrasse
Energieausweis
- EPART: BEDARF
- FGEE-Klasse: A+
- FGEE-Wert: 0.7
- HWB-Klasse: B
- HWB-Wert: 45.1
Grundriss
























