- Kauf
- Wohnung
Ziegelmassive Niedrigenergiehäuser | mit Keller, Eigengarten, Dachterrasse & Garagenplätzen - Provisionsfrei & direkt vom Bauträger!
Objekttyp
WohnungEckdaten
- Immobilien-ID:2165/64
- Zustand:Erstbezug
Beschreibung
Wohnen in Wien-Liesing – zwischen Großstadt & Naherholungsgebieten
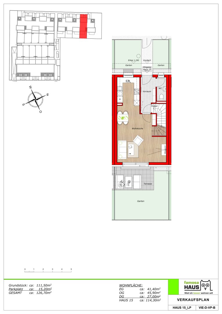
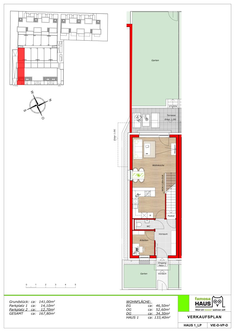
In Wien-Liesing (Hungereckstr 54-58) bieten 16 hochwertigen Ziegelmassiv-Reihenhäuser mit einer Wohnfläche von 114 bis 133 m² viel Platz für Menschen, die in Wien oder im Süden von Wien arbeiten und ein Zuhause suchen, das Wohnqualität, Rückzug und Flexibilität vereint. Für Tage mit klaren Abläufen und Abende mit mehr Leichtigkeit: Der Eigengarten dient zur Erholung und Ernten des eigens angepflanzten Gemüses, Terrasse und Dachterrasse zu stilvollen Freiräumen für Sonne, Gespräche und Entspannung. Die Vollunterkellerung schafft zusätzlichen Raum für Home Office, Fitness, Hobbys oder Stauraum – genau dort, wo moderne Lebensentwürfe Platz brauchen. Schlüsselfertig heißt hier: ankommen, einrichten, leben – mit dem sicheren Gefühl, dass alles bereit ist.
Auf einen Blick:
* Wien-Liesing | 16 Reihenhäuser | fertiggestellt – wenige Einheiten verfügbar!
* 112 bis 133 m² Wohnnutzfläche auf 4 Ebenen| 4–5 Zimmer
* Eigengarten inkl. Außenanlagen & Gartenzaun
* Terrasse + Dachterrasse
* Keller: technisch dicht, wärmegedämmt & beheizt, mit Kellerfenster
* Tiefgarage: 1–2 Garagenplätze je Haus im Preis inkludiert
* Niedrigenergie: Solarkollektoren für Warmwasseraufbereitung, Luftwärmepumpe mit Heiz- & Kühlfunktion, Fußbodenheizung in EG/OG/DG/KG,
* 3-fach Verglasung, elektrische Außenrollläden als Sonnenschutz
* Hochwertige Ziegelmassivbauweise & TÜV AUSTRIA Baubegleitung
* Zusammenarbeit mit namhaften regionalen Partnerbetrieben (u.a. Leitl, Rekord, Vaillant, Bramac, Knauf, Wienerberger)
* Strom-, Wasser- & Kanalanschlussgebühren sowie Aufschließungsabgabe im Kaufpreis inkludiert
* Fixpreis & Finanzierungshilfe
* Direkt vom Bauträger, ohne Maklerkosten, ohne Grundbuch-Eintragungsgebühr (bis 01.07.2026 lt. Befreiung von der Grundbuch-Eintragungsgebühr bei Erwerb von Wohnraum - BMJ [https://www.bmj.gv.at/themen/Zivilrecht/Befreiung-von-der-Grundbuch-Eintragungsgeb%C3%BChr-bei-Erwerb-von-Wohnraum.html])
* 3 Jahren Gewährleistung ab Schlüsselübergabe
* Preise ab € 739.900
Je nach Objekt werden Kaufpreise mit _und_ ohne Oberflächenpaket angeboten. Das Oberflächenpaket beinhaltet Malerarbeiten, Fliesen-/Plattenarbeiten (z. B. Feinsteinzeug 60 × 60 cm „Ares Warm Beige“) und Bautischlerarbeiten (z. B. Fertigparkett Eiche Landhausdiele), hochwertige Sanitärausstattung z.B. mit Villeroy und Boch. Für weitere Informationen zur Bau- und Ausstattung kontaktieren Sie uns gerne.
Jetzt unverbindlich informieren und Finanzierungsmöglichkeiten für Ihren Weg ins Eigenheim entdecken.
_Famosahaus - Qualität und Erfahrung seit mehr als 25 Jahren.
Einziehen & Wohlfühlen! Provisionsfrei, direkt vom Bauträger!_
_DISCLAIMER – VISUALISIERUNGEN / KI-BEARBEITETE FOTOS:_
_DIE DARGESTELLTEN SCHAUBILDER WURDEN TEILWEISE DIGITAL BEARBEITET BZW. MITHILFE KÜNSTLICHER INTELLIGENZ VISUALISIERT. SIE DIENEN AUSSCHLIESSLICH DER BEISPIELHAFTEN DARSTELLUNG VON EINRICHTUNGS- UND GESTALTUNGSMÖGLICHKEITEN UND STELLEN KEINEN VERBINDLICHEN AUSFÜHRUNGS- ODER LIEFERUMFANG DAR. MASSGEBLICH FÜR DIE TATSÄCHLICHE AUSFÜHRUNG SIND AUSSCHLIESSLICH DIE VERTRAGLICHEN VEREINBARUNGEN, BAU- UND AUSSTATTUNGSBESCHREIBUNGEN SOWIE DIE GENEHMIGTEN PLÄNE. ABWEICHUNGEN IN AUSSTATTUNG, MATERIALIEN, FARBEN, MÖBLIERUNG ODER BEPFLANZUNG SIND MÖGLICH._
Infrastruktur / Entfernungen
Gesundheit
Arzt
Energieausweis
- EPART: BEDARF
- FGEE-Klasse: A+
- FGEE-Wert: 0.64
- HWB-Klasse: B
- HWB-Wert: 30.8
Grundriss
























