- Kauf
- Zinshaus / Renditeobjekt
Objekttyp
Zinshaus / RenditeobjektEckdaten
- Immobilien-ID:3992
- Zustand:Teil_vollsaniert
- Wohnfläche:322m2
- Bürofläche:558m2
- Nutzfläche:1044m2
Beschreibung
Zum sofortigen Verkauf gelangt ein dreigeschossiges Mittelzinshaus mit glatter Fassade im achtzehnten Wiener Gemeindebezirk Währing.
Der straßenseitige Gebäudeteil wurde im Jahre 1917 erbaut. Der Hoftrakt wurde im Jahre 1925 zweigeschossig errichtet und im Jahre 1929 um ein drittes Geschoss erweitert sowie ein Gebäudeteil hinten zugebaut.
Auf einer Grundstücksfläche von ca. 629 m² umfasst die Liegenschaft derzeit eine Gesamtnutzfläche von ca. 1.044 m², aufgegliedert in sechs Büroeinheiten mit gesamt ca. 558 m² sowie zwei Wohnungen mit ca. 322 m² Grundfläche. Das gesamte Zinshaus hat eine Bürowidmung.
Ein Büro mit Garage ist noch bis zum 30. April 2026 befristet vermietet. Ab dem 1. Mai 2026 ist dieses Objekt bestandsfrei.
Der aktuelle Leerstand beträgt ca. 92% mit ca. 963,40 m² Nutzfläche.
Für das gesamte Haus inklusive Dachboden wurde bereits eine Baubewilligung mit einer Umwidmung von 50% der Büroflächen in Wohnnutzflächen eingereicht. Die Planung für den Ausbau des Dachgeschosses mit ca. 322 m² Wohnnutzfläche und ca. 60 m² Terrassenfläche sieht eine geschmackvolle Kombination aus klassischer Architektur und moderner Ausstattung vor.
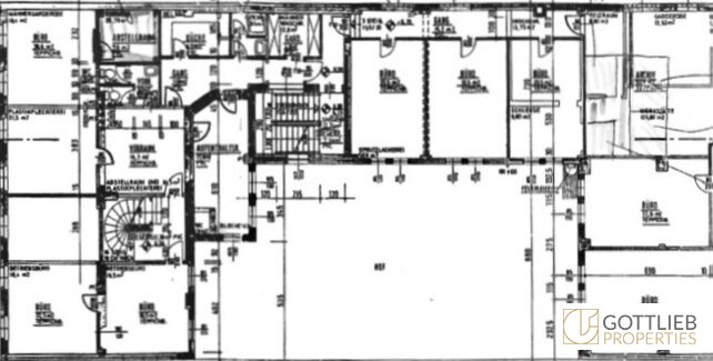
DER BESTAND
+ derzeit Bürowidmung
+ Umwidmung von Büroflächen in Wohnnutzflächen (ca. 345 m²), Bürowidmung (ca. 400 m²), Garage (ca.135 m²) und Neubau Dachgeschoss (gewichtet ca. 353 m²) möglich
+ Gesamtfläche laut Einreichplanung ca. 1.280 m² (siehe Flächenaufstellung)
+ drei Geschosse inklusive Rohdachboden
+ sechs Büros mit ca. 558 m² Nutzfläche
+ zwei Wohnungen mit ca. 322 m² Nutzfläche
+ gesamt ca. 1044 m² Nutzfläche
+ zwei separate Stiegenhäuser im Innenhof
+ sieben Garagenplätze mit ca. 110 m² Nutzfläche, davon vier Stapel Parker
+ ein Abstellraum mit ca. 26 m² Nutzfläche
+ ein Lagerraum mit ca. 28 m² Nutzfläche
+ ein Büro mit ca. 58,60 m² Nutzfläche sowie eine ca. 22 m² große Garage sind noch bis zum 31. April 2026 befristet vermietet
+ fünf Büros und zwei Wohneinheiten mit ca. 477,40 m² Nutzfläche sowie vier Garagenplätze sind bestandsfrei
DER ERTRAG
Laut Zinsliste beträgt der Jahreszinsertrag per 01.01.2026 ca. € 6.000,00 netto p.a.
DAS POTENTIAL
+ Baubewilligung Dachgeschossausbau in Einreichung
+ Abtragung der bestehenden Dachkonstruktion
+ Aufstockung um ein drittes Obergeschoss sowie ein Dachgeschoss
+ Errichtung von vier Wohneinheiten im Dachgeschoss mit insgesamt ca. 323 m² Wohnfläche sowie Balkone, Terrassen und Dachgarten im Ausmaß von ca. 61 m²
Übersicht Altbestand und Neubau in Prozent-Anteilen:
Altbestand:
m²
%-Anteil
Garage
135,26m²
10,57%
allgemeine Fläche EG
46,21m²
3,61%
Bürofläche, EG, 1.OG, 2.OG
399,26m²
31,20%
Wohnungen 1.OG und 2.OG
345,74m²
27,02%
Summe Altbestand:
926,47m²
72,40%
Neubau:
Wohnungen, 3.OG und DG
353,27m²
27,60%
Gesamtsumme:
1279,74m²
100,00%
VERKEHRSANBINDUNG
+ U-Bahn-Linie U6 Alser Straße
+ Straßenbahn-Linien 43, 44
+ Wiener Westbahnhof
Die Wiener Innenstadt erreicht man in ca. 20 Minuten fußläufig oder mit öffentlichen Verkehrsmitteln.
LAGE UND INFRASTRUKTUR
Die ausgesprochen gute Lage dieser Liegenschaft bietet nicht nur eine hervorragende Infrastruktur, sondern auch eine ideale Verkehrsanbindung. Währing, der 18. Wiener Gemeindebezirk, zählt seit Jahren zu den florierenden und gefragten Wohngegenden Wiens.
Die unmittelbare Nähe zur Jörgerstraße und zur Hernalser Hauptstraße garantiert eine perfekte Nahversorgung. Zahlreiche Geschäfte des täglichen Bedarfs, Cafés und Gastronomiebetriebe befinden sich in unmittelbarer Gehnähe.
Erholung findet man im Sommer im Neuwaldegger- oder im Schafberg-Bad sowie im Winter in der Kunsteisbahn Engelmann - alle mit wunderbarem Blick über die Dächer Wiens. Legendär ist auch das 1914 errichtete Jörgerbad, welches das älteste bestehende Wiener Hallenbad ist und unter Denkmalschutz steht. Die weitläufigen Parkanlagen des Schwarzenberg-Parks in Neuwaldegg oder der Wienerwald, das Sportzentrum Marswiese laden zu vielfältigen Spazier- und Freizeitmöglichkeiten ein.
Kulturell findet man im Wiener Metropol diverse Veranstaltungen und Konzerte.
SONSTIGES
Wir ersuchen um Verständnis, dass wir aufgrund unserer Nachweispflicht gegenüber dem Eigentümer nur Anfragen mit vollständigen Kontaktdaten (Name, Adresse, Mobilnummer, Email) bearbeiten können.
Hinweis gemäß Energieausweisvorlagegesetz: Ein Energieausweis wurde vom Eigentümer bzw. Verkäufer, nach unserer Aufklärung über die generell geltende Vorlagepflicht, sowie Aufforderung zu seiner Erstellung noch nicht vorgelegt. Daher gilt zumindest eine dem Alter und der Art des Gebäudes entsprechende Gesamtenergieeffizienz als vereinbart. Wir übernehmen keinerlei Gewähr oder Haftung für die tatsächliche Energieeffizienz der angebotenen Immobilie.
Wir weisen darauf hin, dass zwischen dem Vermittler und dem zu vermittelnden Dritten ein familiäres oder wirtschaftliches Naheverhältnis besteht.
Infrastruktur / Entfernungen
Gesundheit
Arzt
Grundriss





























