- Miete
- Wohnung
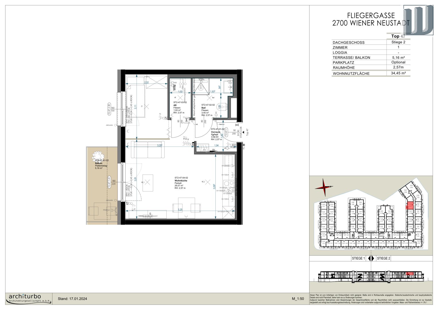
Objekttyp
WohnungZimmer
1.5Badezimmer
1Eckdaten
- Immobilien-ID:1991/77
- Zustand:Neuwertig
- Wohnfläche:34.5m2
- Zimmer:1.5
Beschreibung
Willkommen in Ihrem neuen Zuhause – einer charmanten Dachgeschosswohnung in der idyllischen Stadt Wiener Neustadt, im Herzen von Niederösterreich. Diese neuwertige Wohnung im 1. Dachgeschoss bietet Ihnen nicht nur modernen Wohnkomfort, sondern auch einen Lebensstil, der die perfekte Balance zwischen städtischem Flair und ländlicher Ruhe schafft.
Mit einer großzügigen Fläche ist diese 1-Zimmer-Wohnung ideal für Singles oder Paare, die das Besondere suchen. Der durchdachte Grundriss sorgt dafür, dass Sie jeden Quadratmeter optimal nutzen können. Der lichtdurchflutete Wohnbereich empfängt Sie mit hochwertigen Fliesen und elegantem Parkett, die ein harmonisches Ambiente schaffen.
Besonders hervorzuheben ist die moderne Einbauküche, die nicht nur funktional ist, sondern auch zum Herzstück Ihrer neuen Wohnung wird. Hier können Sie Ihre Kochkünste entfalten und Gäste empfangen, während der Blick auf die umgebende Natur Sie inspiriert. Der Ostbalkon lädt dazu ein, den Tag mit einer Tasse Kaffee zu beginnen und den herrlichen Fernblick sowie den grünen Ausblick zu genießen.
Die Wohnung ist mit einer Fußbodenheizung ausgestattet, die für wohlige Wärme sorgt, während die Fernwärme für eine effiziente und umweltfreundliche Heizlösung steht. Ein Personenaufzug bringt Sie bequem von der Garage direkt zu Ihrer Wohnung – ein unschätzbarer Vorteil, besonders an regnerischen Tagen oder wenn Sie schwerere Einkäufe nach Hause bringen.
Die Lage dieser Immobilie ist unschlagbar. In unmittelbarer Nähe finden Sie Schulen und Supermärkte, sodass Sie alle wichtigen Einrichtungen des täglichen Bedarfs bequem zu Fuß erreichen können. Dank der hervorragenden Verkehrsanbindung sind Sie auch schnell unterwegs: Bus, Bahnhof und der Flughafen sind nur wenige Minuten entfernt, was Ihnen Flexibilität und Mobilität in Ihren täglichen Aktivitäten bietet.
Mieten Sie diese traumhafte Wohnung und genießen Sie ein Leben in modernem Komfort, umgeben von der malerischen Kulisse Niederösterreichs. Lassen Sie sich diese Gelegenheit nicht entgehen – vereinbaren Sie noch heute einen Besichtigungstermin und überzeugen Sie sich selbst von dieser einzigartigen Immobilie!
Sobald Sie uns eine Anfrage senden, erhalten Sie automatisiert ein Exposé zu diesem Apartment und Sie haben die Möglichkeit uns Ihren persönlichen Besichtigungstermin bekanntzugeben, nachdem Sie die Datenschutz-Erklärung bestätigen. Dadurch entstehen für Sie weder Kosten, noch Verpflichtungen!
Ihr neues Zuhause wartet auf Sie.
Wir weisen darauf hin, dass zwischen dem Vermittler und dem zu vermittelnden Dritten ein familiäres oder wirtschaftliches Naheverhältnis besteht.
Der Immobilienmakler erklärt, dass er – entgegen dem in der Immobilienwirtschaft üblichen Geschäftsgebrauch des Doppelmaklers – einseitig nur für den Vermieter tätig ist.
Infrastruktur / Entfernungen
Gesundheit
Arzt
Merkmale
- Terrasse
Energieausweis
- EPART: BEDARF
- FGEE-Klasse: A
- FGEE-Wert: 0.75
- HWB-Klasse: B
- HWB-Wert: 36.6
Grundriss











