- Kauf
- Haus
Objekttyp
HausZimmer
5.5Badezimmer
2Eckdaten
- Immobilien-ID:1689/3145837
- Zustand:Erstbezug
- Wohnfläche:151.4m2
- Nutzfläche:180m2
- Zimmer:5.5
Beschreibung
PROJEKTSTATUS: in BAU - Rohbau fertig, Innenausbau - Estrich
Exklusives EINFAMILIENHAUS in sehr beliebter, sonniger Grünruhelage in Wilhering - Reith!
Großzügig, individuell und komfortabel Wohnen nach angepasster Planung auf ca. 151 m² Wohnfläche.
Das Auto bequem in der Garage vor dem Haus parken und die Sonnentage und Abende auf der großen und teilweise überdachten Terrasse genießen.
Als zusätzlicher Stauraum wurde die Garage um ca. 10 m² Abstellraum erweitert!
Das eigene Paradies im Garten schaffen oder gemütlich am Pool chillen. Auf dem Grundstück mit 511 m² stehen Ihnen alle Möglichkeiten offen!
Bei der Planung wurde großer Wert auf die Ausrichtung des Gebäudes und individuelle Wohnbedürfnisse gelegt, um alle Vorzüge des eigenen Hauses zu gewährleisten! Mit ausreichend Platz für Ihren persönlichen Freiraum, praktischen Stauraum und moderner Wohnraumplanung wird auf dem Grundstück ein neues Zuhause für Jung und Alt geschaffen. Der Wohn- Koch- Essbereich ermöglicht eine perfekte Balance zwischen Trennung und Verbindung der Bereiche. In der Küche wurde sogar eine Speise berücksichtigt. Ein Kaminanschluss bietet v.a. in der Übergangszeit eine wohlige Alternative zur Wärmepumpe. Sie können den Morgen mit 2 Bädern im Obergeschoss staufrei starten und bei Bedarf im Homeoffice ungestört arbeiten.
Wir bauen mit gewohnt hohem Standard. Das EFH wird in bewährter Massivbauweise in Niedrigenergiestandard und mit qualitativ und technisch hochwertigen Materialien ausgeführt.
Unsere Ausstattungshighlights:
* hochwertige belagsfertige Ausführung
* Hebe- Schiebetüre im Essbereich zur Terrasse
* Außenbereich mit Einfriedung /Gartenmauer
* Garage mit Sektionaltor
* zusätzlicher Abstellraum (mit Fenster) bei Garage mit ca. 10 m² - massiv gebaut
* umweltfreundliche Luft-Wasser-Wärmepumpe und Fußbodenheizung mit Kühlfunktion
* Kamin für eine zusätzliche stromunabhängige Wärmequelle
* Beschattung durch elektrische Raffstore bzw. Rollläden bei Fenstern und Terrassentüren
* 2 Bäder im Obergeschoss
* Vorbereitung für PV-Anlage
* großzügiger Garten
* Regenwasserzisterne für Gartenbewässerung
* zusätzlicher PKW-Abstellplatz
* auf Wunsch schlüsselfertig-Paket gegen Aufpreis - Kaufpreis ab € 55.000,-!
Eine ausführliche Bau- & Ausstattungsbeschreibung übermitteln wir gerne per Mail. Vereinbaren Sie ein persönliches Beratungsgespräch und reservieren Ihr Wunschhaus.
Wir weisen darauf hin, dass zwischen dem Vermittler und dem zu vermittelnden Dritten ein familiäres oder wirtschaftliches Naheverhältnis besteht.
Infrastruktur / Entfernungen
Gesundheit
Arzt
Flächen
Merkmale
- Terrasse
- Garten
Energieausweis
- EPART: BEDARF
- FGEE-Klasse: A+
- FGEE-Wert: 0.59
- HWB-Klasse: B
- HWB-Wert: 42
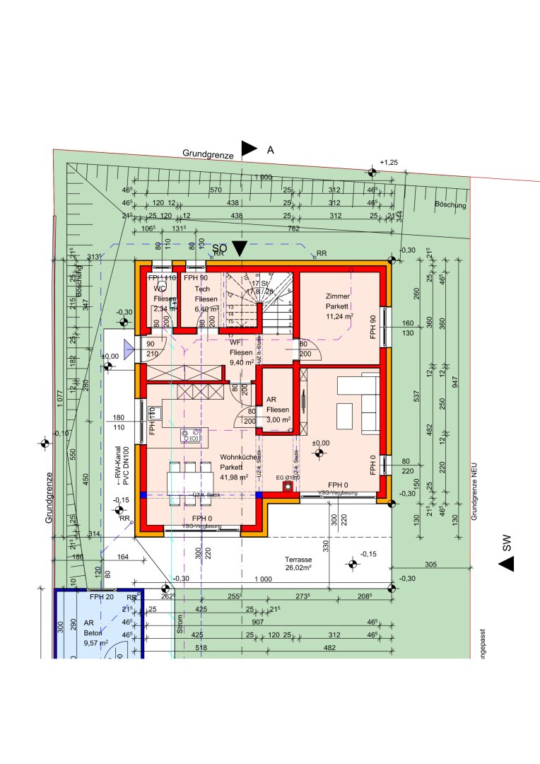
Grundriss
























