- Kauf
- Haus
Objekttyp
HausZimmer
4Badezimmer
1Eckdaten
- Immobilien-ID:1757/520
- Zustand:Erstbezug
- Wohnfläche:129.95m2
- Zimmer:4
Beschreibung
Ihr neues Zuhause mit viel Platz, Ruhe und Lebensqualität in naturnaher Umgebung!
In sonniger Ruhelage von St. Marein bei Graz entsteht ein modernes Wohnprojekt mit hochwertig errichteten Doppelhaushälften!
Großzügige Grundrisse, stilvolle Ausstattung und durchdachte Raumkonzepte schaffen ein Wohngefühl zum Ankommen und Wohlfühlen. Eigengarten, Terrasse sowie ein Carport-Stellplatz bieten zusätzlichen Komfort im Alltag.
Die ruhige, naturnahe Umgebung bietet Erholung im Alltag, während gleichzeitig eine ausgezeichnete Anbindung nach Graz sowie die Nähe zu Gleisdorf und Feldbach für maximale Flexibilität sorgen.
Ein Zuhause, das modernes Wohnen neu definiert – stilvoll, ruhig und dennoch bestens angebunden.
ECKDATEN:
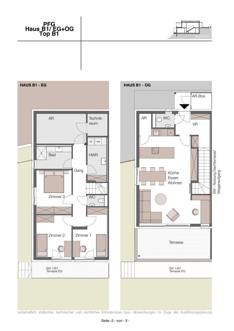
HAUS TOP B1: Doppelhaushälfte (129,95m²); Terrasse; Garten; Carport-Stellplatz
Die durchdacht geplante Doppelhaushälfte überzeugt mit einer klaren Trennung von Wohn- und Rückzugsbereichen und bietet ein modernes Wohnkonzept für höchste Ansprüche.
Im Obergeschoss erwartet Sie ein großzügiger, lichtdurchfluteter Wohn-, Ess- und Kochbereich mit direktem Zugang zur sonnigen Terrasse – der perfekte Ort für gemeinsame Stunden und entspannte Abende. Ergänzt wird diese Ebene durch einen praktischen Vorraum, ein WC sowie zusätzliche Abstellflächen.
Das Erdgeschoss ist als ruhiger Rückzugsort konzipiert: Hier befinden sich die Schlafzimmer, ein Badezimmer sowie weitere Nebenräume. Im Erdgeschoss besteht die Möglichkeit, eine Terrasse als Sonderwunsch umzusetzen. Von den Zimmern aus würden Sie direkt in den privaten Garten gelangen – ein harmonisches Zusammenspiel von Innen- und Außenraum, das Wohnqualität und Lebensgefühl ideal vereint.
Ein Zuhause, das durch seine durchdachte Raumaufteilung, Helligkeit und Wohnqualität auf ganzer Linie überzeugt.
KOSTEN:
Verkaufspreis Wohnung: € 516.000,-
Fahrräder/ AR und AR-Box im Wohnungspreis inkludiert!
Carport-Stellplatz: € 12.000,-
Der Kaufpreis versteht sich schlüsselfertig!
Betriebskosten sind in Berechnung.
----------------------------------------------------------
Voraussichtlicher Baustart: Sommer 2026
Voraussichtliche Fertigstellung: Winter 2026 / Frühjahr 2027
----------------------------------------------------------
SONDERWUNSCHMÖGLICHKEITEN:
Optional besteht die Möglichkeit, auf Sonderwunsch eine Dachterrasse zu realisieren, die zusätzlichen Freiraum sowie einen traumhaften Ausblick bietet.
Nutzung der Dachterrasse mit Dachausstieg/Stiegenaufgang-innen
Terrasse EG lt. Plan
Carport SW B1/2
---------------------------------------------------------
HIGHLIGHTS:
+ Architektenplanung – moderne & ansprechende Gestaltung
+ Kleines Projekt mit nur 5 Doppelhäusern – 10 Wohneinheiten
+ Angenehme Raumhöhen
+ Großzügige Gartenflächen & Terrassen
+ Modernes offenes Wohnraumkonzept
+ Angenehme Raumhöhe & gut geschnittene Räume
+ Großer Wohn/Essraum mit offener Küche
+ Großflächige Fensterflächen
+ Geräumiges Bad mit barrierefreier Dusche
+ 2 Toiletten
+ großer Stauraum im Untergeschoss
+ SW ausgerichtete große Eckterrasse & Garten
+ Luftwärmepumpe
+ Fußbodenheizung
Weitere Informationen sowie alle verfügbaren Wohneinheiten finden Sie auf unserer Projektseite
_VERKAUF & BERATUNG:_
_Sehr gerne stehe ich Ihnen für Rückfragen zur Verfügung!_
_Ich freue mich auf Ihre Anfrage!_
Gertrud Sablatnig, MBA
Staatlich konzessionierte Immobilienmaklerin
Tel: +43/664 88 14 04 85 [tel:+4366488140485]
E-Mail: gertrud@immobilien-sablatnig.at
Alle Informationen beruhen auf Angaben des Abgebers und sind ohne Gewähr. Wir dürfen darauf hinweisen, dass wir als Doppelmakler tätig sind und ein wirtschaftliches Nahverhältnis zu unserem Auftraggeber besteht. Dieses ergibt sich aus regelmäßiger geschäftlicher Verbindung. Weiters möchten wir Sie informieren, dass ein Provisionsanspruch erst nach Unterzeichnung eines Kaufanbots besteht. Eine Besichtigung dieser schönen Liegenschaft ist selbstverständlich für Sie unverbindlich und kostenlos.
WICHTIGER gesetzlicher HINWEIS:
Wir bitten um Ihr Verständnis, dass wir aufgrund einer neuen EU-Richtlinie (§11FAGG) Unterlagen und Besichtigungstermine für unsere Immobilien erst dann zusenden und vereinbaren können, wenn Sie uns bestätigen, dass Sie über Ihre Rücktrittsrechte aufgeklärt wurden und unser sofortiges Tätigwerden wünschen.
Des weiteren ersuchen wir um Verständnis, dass wir gemäß österreichischer Gewerbeordnung, sowie unserer Nachweispflicht gegenüber dem Auftraggeber nur Anfragen mit vollständigem Namen, Anschrift, Telefonnummer und Mail Adresse bearbeiten bzw. detaillierte Unterlagen weiterleiten können.
Wir bitten um Ihr Verständnis, vielen Dank!
Wir weisen darauf hin, dass zwischen dem Vermittler und dem zu vermittelnden Dritten ein familiäres oder wirtschaftliches Naheverhältnis besteht.
Der Vermittler ist als Doppelmakler tätig.
Wir weisen darauf hin, dass zwischen dem Vermittler und dem zu vermittelnden Dritten ein familiäres oder wirtschaftliches Naheverhältnis besteht.
Der Vermittler ist als Doppelmakler tätig.
Infrastruktur / Entfernungen
Gesundheit
Arzt
Merkmale
- Terrasse
Grundriss




























































































