- Kauf
- Haus
Objekttyp
HausBadezimmer
1Eckdaten
- Immobilien-ID:6587/264
- Zustand:Teil_vollrenovierungsbed
- Wohnfläche:114m2
- Nutzfläche:217m2
Beschreibung
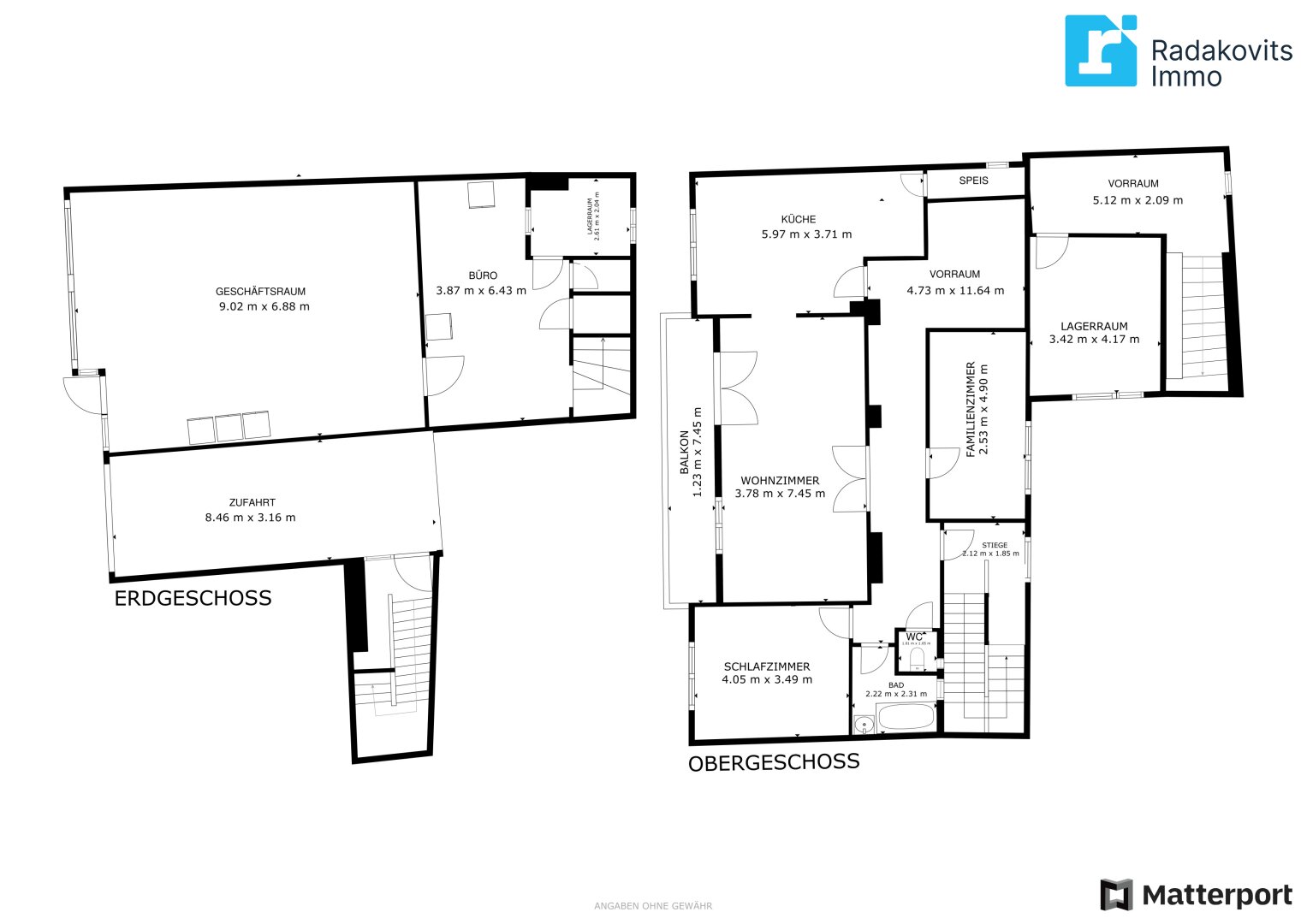
Dieses vielseitige Stadthaus bietet eine spannende Kombination – im Obergeschoß wartet eine sofort bezugsbereite Wohnung darauf bewohnt zu werden, im Erdgeschoß besteht eine vermietete Gewerbefläche. Dieses Angebot richtet sich an Personen die eine Wohnung suchen und gleichzeitig von einer vermieteten Gewerbefläche profitieren wollen!
Im Erdgeschoss befindet sich eine bereits vermietete Gewerbeeinheit mit zugehörigem Keller – sie sorgt für ein laufendes monatliches Einkommen und stellt somit eine attraktive Einnahmequelle dar.
Über einen separaten Eingang gelangt man in die großzügige Wohneinheit im Obergeschoss. Dort erwarten Sie fünf Zimmer, die sich flexibel als Wohn-, Arbeits- oder Gästezimmer nutzen lassen. Der Balkon sorgt für direkt zugänglichen Freiraum bei der Wohnung. Die Beheizung erfolgt über eine Öl-Zentralheizung.
Diese Liegenschaft punktet mit der zentralen Lage, dem großzügigen Raumangebot und die klare Trennung von Wohn- und Gewerbefläche.
Wenn Sie dieses Angebot anspricht, zögern Sie nicht – melden Sie sich am besten noch heute! Wir beantworten gerne all Ihre Fragen und stehen jederzeit für eine Besichtigung vor Ort zur Verfügung.
Nutzen Sie diese Gelegenheit – wir freuen uns auf Ihre Kontaktaufnahme!
Noch nichts gefunden? Wir informieren Sie über geeignete Immobilienangebote noch vor allen anderen.
Legen Sie jetzt Ihren individuellen Suchagenten unter folgendem Link an. Wir schicken Ihnen passende Immobilien exklusiv vorab zu.
Suchagent anlegen [https://radakovits-immobilienmanagement.service.immo/registrieren/de] - https://radakovits-immobilienmanagement.service.immo/registrieren/de
Der Vermittler ist als Doppelmakler tätig.
Infrastruktur / Entfernungen
Gesundheit
Arzt
Flächen
Energieausweis
- EPART: BEDARF
- FGEE-Klasse: E
- FGEE-Wert: 2.7
- HWB-Klasse: E
- HWB-Wert: 186.7
Grundriss


































































































































































































































































































































































