- Kauf
- Wohnung
Objekttyp
WohnungZimmer
3Badezimmer
1Eckdaten
- Immobilien-ID:8425/82
- Wohnfläche:75m2
- Zimmer:3
Beschreibung
DIE WICHTIGSTEN ECKDATEN DIESER IMMOBILIE:
+ befristet vermietet bis: Ende Oktober 2027
+ aktueller netto Mietzins: € 1.064,07
+ Baujahr 1961
+ letzte Sanierung der Wohnung: 2023
+ Fernwärme
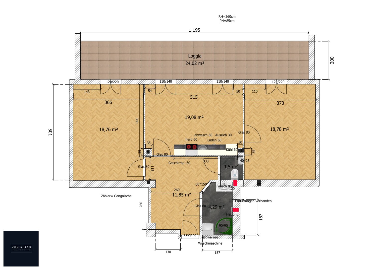
+ ca. 99 m² Nutzfläche inkl. Loggia mit ca. 24 m² zzgl. Kellerabteil
+ 2. Liftstock
+ 3 Zimmer, 2 separat begehbare Zimmer
+ geräumige Wohnküche
+ Badezimmer mit Dusche und Waschmaschinenanschluss
+ WC separat
+ Lichtdurchfluteter Wohnbereich
+ Parkettböden
DIE WOHNUNG
Zum Verkauf steht eine 3-Zimmer-Wohnung (die Schlafzimmer sind separat begehbar), im 2. Liftstock. Das Haus wurde im Jahr 1961 errichtet und befindet sich in einem gepflegten Zustand. Die 2023 sanierte Wohnung verfügt über eine Nutzfläche von ca. 99 m² inkl. einer Loggia mit ca. 24 m²:
Vom großzügigen Eingangsbereich aus gelangt man in das Badezimmer, das mit Dusche, Waschbecken und einem Anschluss für die Waschmaschine ausgestattet ist, sowie in die separate Toilette, eines der beiden Zimmer und die Wohnküche. Von der Wohnküche aus erschließt sich das zweite Zimmer. Die Loggia ist von beiden Schlafzimmern aus begehbar. Im gesamten Wohnbereich wurde Fischgrätparkett verlegt. Die Beheizung erfolgt mittels Fernwärme und ein Kellerabteil bietet zusätzlichen Stauraum.
Da diese Wohnung sich in einer Einbahnstraße befindet, ist die Liegenschaft trotz zentraler Lage ruhig.
Die Wohnung ist bis Ende Oktober 2027 befristet vermietet.
***Freier MZ laut Bundesministerium***
_***Bitte beachten Sie, dass es sich bei einigen der abgebildeten Einrichtungsgegenstände um Visualisierungen handelt. Da die Wohnung derzeit noch bewohnt ist, wurden die Bilder zur besseren Veranschaulichung erstellt, um die Potenziale des Raumes darzustellen.***_
DIE LAGE
Diese Wohnung liegt in einer Seitengasse von einer der größten und bekanntesten Einkaufsstraßen Wiens, der Mariahilfer Straße, in einer ruhigen Einbahnstraße. Diverse Einkaufsmöglichkeiten, Ärzte, Anwälte, Kindergärten und Schulen befinden sich in unmittelbarer Nähe und bieten eine optimale Infrastruktur. Eine lebendige Kultur- und Kunstszene, zahlreiche Shops sowie namhafte Restaurants und Kaffeehäuser sind in kürzester Zeit erreichbar. Eine ausgezeichnete Einkaufsmöglichkeit bietet die Mariahilfer Straße, die nur wenige Minuten entfernt liegt.
ÖFFENTLICHE ANBINDUNG
U-Bahn
*
Pilgramgasse (Linie U4): ca. 650 m entfernt
*
Westbahnhof (Linie U3 & U6): ca. 700 m entfernt
Bus
*
Hirschengasse (Linie 57A): ca. 210 m entfernt
*
Pilgramgasse (Linie 13A & 14A) ca. 600 m entfernt
Straßenbahn
*
Mariahilfer Straße, Kaiserstraße (Linie 5): ca. 650 m entfernt
*
Mariahilfer Gürtel (Linie 6 & 18): ca. 900 m entfernt
Wir weisen darauf hin, dass zwischen dem Vermittler und dem zu vermittelnden Dritten ein familiäres oder wirtschaftliches Naheverhältnis besteht.
Der Vermittler ist als Doppelmakler tätig.
Infrastruktur / Entfernungen
Gesundheit
Arzt
Energieausweis
- EPART: BEDARF
- FGEE-Wert: 1.89
- HWB-Klasse: C
- HWB-Wert: 93
Grundriss






























































































































































































































































































































































































































































































































































































