- Kauf
- Wohnung
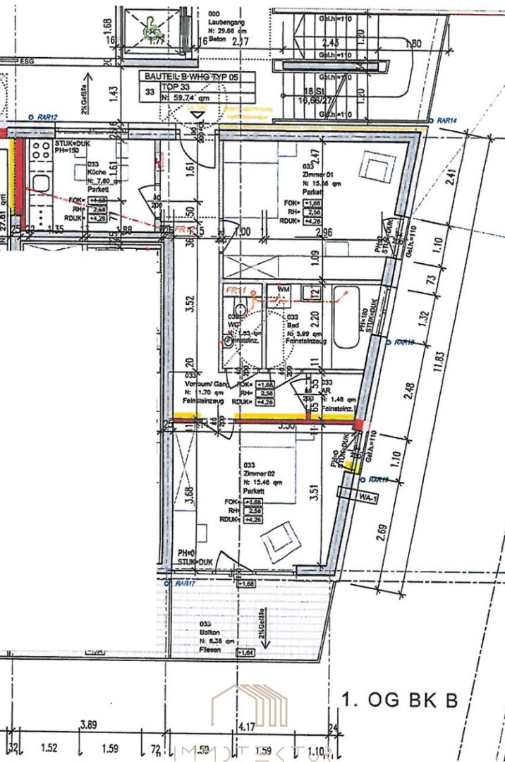
BESTLAGE ST. PETER: Wunderschöne Wohnung mit 2 Zimmer + Extraküche, Balkon und Tiefgarage
Objekttyp
WohnungZimmer
2.5Badezimmer
1Eckdaten
- Immobilien-ID:8374/150
- Wohnfläche:59.74m2
- Zimmer:2.5
Beschreibung
WILLKOMMEN IN GRAZ-ST. PETER, EINER DER BELIEBTESTEN WOHNGEGENDEN DER STADT!
IN DIREKTER NACHBARSCHAFT ZUR TECHNISCHEN UNIVERSITÄT GRAZ GENIESSEN SIE HIER URBANES LEBEN MIT HOHER LEBENSQUALITÄT UND HERVORRAGENDER INFRASTRUKTUR.
Ob mit der Straßenbahn, dem Fahrrad oder zu Fuß – in wenigen Minuten erreichen Sie das Stadtzentrum, Nahversorger, Cafés und Parks.
Trotz der zentralen Lage liegt die Wohnung abseits der Hauptstraße – ruhig, sonnig und mit viel Privatsphäre.
Ein Standort, der alles bietet: Nähe zur Uni, beste Verkehrsanbindung und ein entspanntes Wohnumfeld.
DAS GEBÄUDE: MODERN & GEPFLEGT MIT TIEFGARAGE
Das Wohnhaus wurde ca. 2013 fertiggestellt und präsentiert sich in modernem, gepflegtem Zustand.
Zwei harmonisch angeordnete Baukörper und eine hauseigene Tiefgarage sorgen für Komfort und ein angenehmes Wohngefühl.
Ein Tiefgaragenstellplatz wird mitverkauft (derzeit ebenfalls vermietet) – ein besonderer Vorteil in dieser beliebten Lage.
DIE WOHNUNG: HELLIGKEIT, RAUMGEFÜHL & IDEALE AUFTEILUNG
Diese 2,5-Zimmer-Wohnung im 1. Obergeschoss überzeugt durch ihre clevere Raumaufteilung und ihre Südwest-Ausrichtung – Sonne, Licht und Behaglichkeit inklusive.
Das Herzstück ist der sonnige Westbalkon, der nachmittags zum Entspannen, Lesen oder gemütlichen Beisammensein einlädt.
Die Wohnung bietet alles, was modernes Wohnen braucht:
*
Zwei separat begehbare Zimmer – ideal für Paare, Singles oder Wohngemeinschaften
*
Separate Küche mit Fenster
*
Bad und WC getrennt – praktisch und komfortabel
*
Fußbodenheizung für behagliche Wärme
*
Echtholzparkett in den Wohnräumen, Fliesen im Vorraum, Bad und WC
Die intelligente Raumaufteilung ermöglicht verschiedene Wohnkonzepte – vom stilvollen Eigenheim bis zur attraktiven WG.
INVESTMENTCHANCE: BEFRISTET VERMIETET
Die Wohnung ist befristet vermietet – ein solides Anlageobjekt mit verlässlichen Mieteinnahmen und geringem Verwaltungsaufwand.
Details zu Mietdauer und Konditionen erhalten Sie gerne auf Anfrage.
*
Netto-Kaufpreis Wohnung: 275.000 € (zzgl. 20% USt.)
*
Netto-Kaufpreis Tiefgaragenplatz: 20.000 € (zzgl. 20% USt.)
ACHTUNG : Für Eigennutzer besteht auf Wunsch die Möglichkeit eines umsatzsteuerfreien Kaufes (Kaufpreis auf Anfrage).
EINE VIELSEITIGE WOHNUNG IN TOPLAGE
Ob als cleveres Investment, zukünftige Studentenwohnung oder stilvolles Eigenheim – diese Immobilie vereint alle Vorteile, die St. Peter so begehrt machen:
*
Zentrale, ruhige Lage nahe der TU Graz
*
Sonnige Ausrichtung und großzügiger Balkon
*
Durchdachte Raumaufteilung mit getrennten Zimmern
*
Tiefgaragenplatz wird mitverkauft (Aufpreis)
Selten und begehrt: Wohnungen mit dieser Kombination aus Lage, Qualität und Grundriss sind in St. Peter kaum zu finden! Die Wohnung ist Ihnen zu klein? Kein Problem - denn auch die Nebenwohnung mit rd. 27m² Wohnfläche steht zum Verkauf. Hier der Link zur Nebenwohnung: https://www.immotektur.at/objekt/14542017
Hinweis: Alle Angaben ohne Gewähr. Irrtümer, Tippfehler und Zwischenverkauf vorbehalten.
Noch nichts gefunden? Wir informieren Sie über geeignete Immobilienangebote noch vor allen anderen.
Legen Sie jetzt Ihren individuellen Suchagenten unter folgendem Link an. Wir schicken Ihnen passende Immobilien exklusiv vorab zu.
Suchagent anlegen [https://nuic-immobilien.service.immo/registrieren/de] - https://nuic-immobilien.service.immo/registrieren/de
Wir weisen darauf hin, dass zwischen dem Vermittler und dem zu vermittelnden Dritten ein familiäres oder wirtschaftliches Naheverhältnis besteht.
Der Vermittler ist als Doppelmakler tätig.
Infrastruktur / Entfernungen
Gesundheit
Arzt
Energieausweis
- EPART: BEDARF
- FGEE-Klasse: C
- FGEE-Wert: 1.29
- HWB-Klasse: C
- HWB-Wert: 63.8
Grundriss






























































































































































































































































































































































































































































































































































































































































































































