- Kauf
- Wohnung
Objekttyp
WohnungEckdaten
- Immobilien-ID:8461/332
- Zustand:Erstbezug
Beschreibung
Diese exklusive Immobilie bietet Ihnen den perfekten Erstbezug, der keine Wünsche offenlässt.
Das Neubauprojekt umfasst insgesamt 9 Wohneinheiten, die sich in vier Doppelhaushälften und ein Wohnhaus mit 5 Wohnungen aufteilen und wird mit Ende 2026 bezugsfertig sein.
Die geplanten Einheiten überzeugen mit modernen Grundrissen, großzügigen Freiflächen und hochwertiger Ausstattung. Die Wohnflächen variieren zwischen 61 m2 bis 88 m2 und richten sich an eine breite Zielgruppe, wie Familien, Paare, Singles und Anleger.
Es ist eine Tiefgarage mit 10 KFZ-Stellplätzen geplant, sowie ausreichend Kellerflächen. Zusätzlich sind Fahrrad- und Müllabstellplätze überdacht vorgesehen.
Alle Wohnungseinheiten verfügen über Balkone, Terrassen oder Gärten, die zusätzlich Wohnwert und Wohlfühlcharakter bieten. Eine auf die persönlichen Bedürfnisse abgestimmte Innenraumplanung ist bei jeder Einheit bis zum Baubeginn noch problemlos möglich.
Von dem Moment an, in dem Sie die Wohnung betreten, werden Sie von der modernen Architektur und dem durchdachten Design begeistert sein. Lichtdurchflutete Räume und eine hochwertige Ausstattung sorgen für ein angenehmes Wohngefühl, das Sie sofort in Ihren Bann ziehen wird. Genießen Sie den Charme und die Gemütlichkeit, die diese Immobilie ausstrahlt und verwandeln Sie sie in Ihr persönliches Paradies.
Die Lage könnte nicht besser sein: Strategisch günstig gelegen, profitieren Sie von einer hervorragenden Verkehrsanbindung. Ob Bus, Straßenbahn oder der nahegelegene Bahnhof – Sie erreichen alle wichtigen Punkte der Stadt schnell und unkompliziert. So wird der Weg zur Arbeit oder zu Ihren Freizeitaktivitäten zum Kinderspiel.
Für Ihr tägliches Leben sind Sie bestens versorgt. In der unmittelbaren Umgebung finden Sie alles, was Sie benötigen. Ärzte, Apotheken, Kliniken und Krankenhäuser sind nur einen kurzen Spaziergang entfernt. Auch für Familien ist diese Lage ideal: Schulen und Kindergärten befinden sich ebenfalls in der Nähe, sodass Ihre Kinder in einem sicheren und anregenden Umfeld aufwachsen können.
Und natürlich dürfen auch die täglichen Besorgungen nicht zu kurz kommen. Supermärkte und Bäckereien sind in Ihrer Nachbarschaft, sodass Sie jederzeit frische Brötchen oder die Zutaten für Ihre Lieblingsgerichte besorgen können.
Diese Immobilie bietet Ihnen nicht nur ein Zuhause, sondern auch eine Lebensqualität, die in der heutigen Zeit von unschätzbarem Wert ist. Erleben Sie den Komfort eines Erstbezugs in einer hervorragend angebundenen Lage, die Ihnen alle Annehmlichkeiten des täglichen Lebens direkt vor der Tür bietet.
Lassen Sie sich diese einmalige Gelegenheit nicht entgehen! Kontaktieren Sie uns noch heute unter +43 676 6332731 [tel:+436766332731] für weitere Informationen und einen Besichtigungstermin. Ihr neues Zuhause in Graz wartet auf Sie!
Wir weisen darauf hin, dass zwischen dem Vermittler und dem zu vermittelnden Dritten ein familiäres oder wirtschaftliches Naheverhältnis besteht.
Der Vermittler ist als Doppelmakler tätig.
Top C1: 61,7 m² 366.000,00 € aktiv
Top A1: 85,78 m² 545.000,00 € aktiv
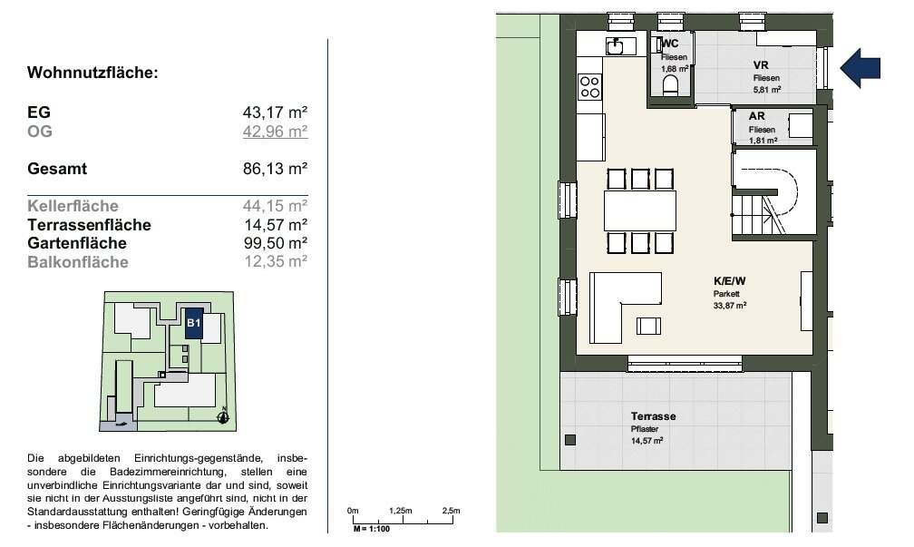
Top B1: 86,13 m² 549.000,00 € aktiv
Top C2: 66,66 m² 394.000,00 € aktiv
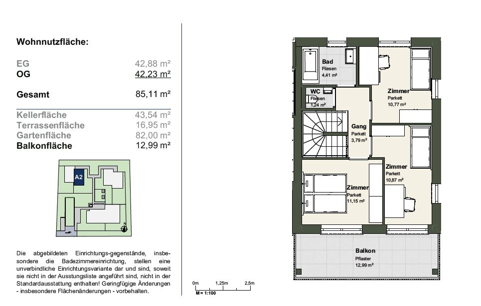
Top A2: 85,11 m² 543.000,00 € aktiv
Top B2: 85,47 m² 543.000,00 € aktiv
Top C3: 69,99 m² 399.000,00 € aktiv
Top C4: 79,93 m² 459.000,00 € aktiv
Top C5: 87,34 m² 639.000,00 € aktiv
Infrastruktur / Entfernungen
Gesundheit
Arzt
Energieausweis
- EPART: BEDARF
- FGEE-Klasse: A
- FGEE-Wert: 0.81
- HWB-Klasse: B
- HWB-Wert: 46
Grundriss


































































































































































































































































































































































































































































































































