- Miete
- Büro und Praxen
Objekttyp
Büro und PraxenZimmer
5Badezimmer
2Eckdaten
- Immobilien-ID:19521
- Zustand:Neuwertig
- Wohnfläche:154.29m2
- Nutzfläche:167.79m2
- Zimmer:5
Beschreibung
Beim Lainzer Platz´l steht diese großzügige Maisonette mit Garten zur Verfügung und ist bestens als Büro oder Praxis geeignet!
Die von der Strasse aus abgewendete, uneingesehene, gepflegte Anlage vermittelt "dörflichen" Charakter.
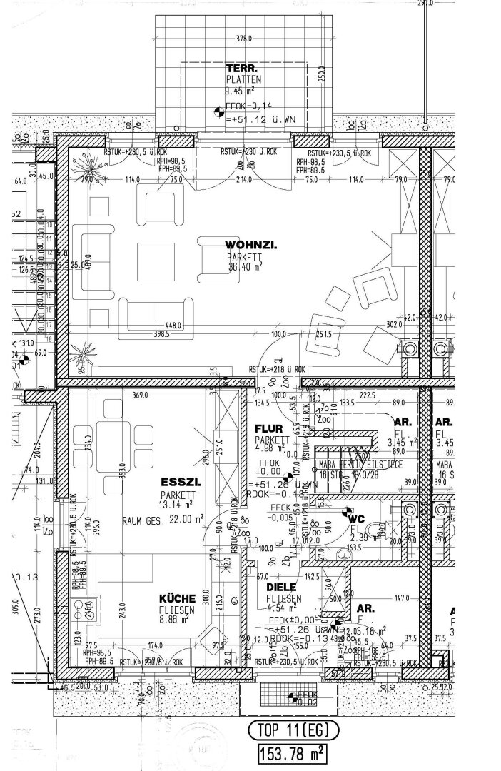
Die Maisonette verfügt über eine Wohn/Nutzfläche von ca. 168m², die sich über 2 Etagen verteilen. Über den Vorraum, mit Garderoberaum, gelangt man in einen großzügigen Raum, von dem aus die ca. 9m² große Terrasse zu betreten ist die in den kleinen, jedoch feinen 70m² Garten führt. Ebenfalls vom Vorraum aus ist die Küche, welche komplett mit Miele-Geräten ausgestattet erreichbar und ein separates Gäste-WC.
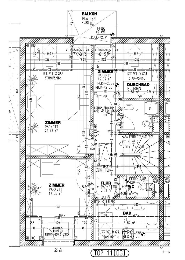
Der Stiegenaufgang führt in das Obergeschoss in dem sich 2 Zimmer, mit Ausgang auf den ca. 5m² großen Balkon befinden sowie ein weiteres Zimmer, ein Duschbad und ein großes Bad mit Wanne, Doppelwaschtisch, Waschmaschinenanschluß und ein separates WC.
Als Stauraum dient der große, verschalte Dachboden, da das Objekt über keinen Keller verfügt.
Ruhelage, Grünblick, Terrasse, Eigengarten, hochwertige Ausstattung wie Parkett/Fliesenböden, Gasetagenheizung, Isolierglasfenster, Telefon-SAT-Anschluß und die hervorragende Infrastruktur zeichnen dieses Objekt besonders aus.
Die öffentliche Verkehrsanbindung ist mit der Strassenbahnlinie 60 vor der Haustüre gegeben, sodass man in wenigen Minuten die U4-Hietzing erreicht. Die Nahversorgung und das Bildungsangebot lassen keine Wünsche offen!
Das Objekt wird auf 5 Jahre befristet, mit Verlängerung, vermietet.
Miete (netto): 2.335,08 EUR
Betriebskosten (netto): 314,34 EUR
Umsatzsteuer (gesamt): 529,88 EUR
Gesamtmiete: 3.179,30 EUR
Provision: 9.537,91 EUR
Kaution: 14.306,87 EUR
MV-Errichtungsgebühr: 600,00 EUR
FA-Gebühr: 1.907,58 EUR
Flächen
Merkmale
- Terrasse
- Garten
Energieausweis
- EPART: BEDARF
- FGEE-Klasse: C
- FGEE-Wert: 1.06
- HWB-Klasse: B
- HWB-Wert: 58.7
Grundriss
























































































































































































































































































































































































































































































































































































































