- Kauf
- Wohnung
Objekttyp
WohnungZimmer
1Eckdaten
- Immobilien-ID:7852/298
- Zustand:Erstbezug
- Wohnfläche:61.1m2
- Zimmer:1
Beschreibung
Inmitten der sanften Hügel und malerischen Weinberge der Weststeiermark gelegen, präsentiert sich dieses Projekt als außergewöhnliche Verbindung von Natur, Ruhe und erstklassiger Infrastruktur.
Besonderes Augenmerk liegt auf Individualität: Jede Wohnung eröffnet Raum für persönliche Gestaltungswünsche und ermöglicht es, ein Zuhause zu realisieren, das gleichermaßen durch Ästhetik und durchdachte Funktionalität besticht und zugleich Ihren Lebensstil perfekt widerspiegelt.
Geschäfte des täglichen Bedarfs, erstklassige Gastronomie und vielfältige Freizeiteinrichtungen befinden sich in unmittelbarer Nähe. Direkt gegenüber sorgt eine moderne Mittelschule für besonderen Mehrwert und macht diesen Standort besonders attraktiv für Familien. Durch die ausgezeichnete Verkehrsanbindung sind die Stadtzentren von Deutschlandsberg und Graz in kurzer Zeit erreichbar. Hier erleben Sie Wohnen im Einklang mit der Natur – ohne Abstriche, mit bester Infrastruktur direkt vor der Haustür.
Dieser Wohnkomplex steht für weit mehr als bloßes Wohnen – er repräsentiert eine nachhaltige Investition in Lebensqualität und Zukunft. Nutzen Sie diese Gelegenheit und sichern Sie sich Ihr neues Zuhause in St. Stefan ob Stainz.
Die Fertigstellung des Projekts ist für den Herbst 2026 vorgesehen, sodass Sie Ihr neues Zuhause zu diesem Zeitpunkt in Empfang nehmen können.
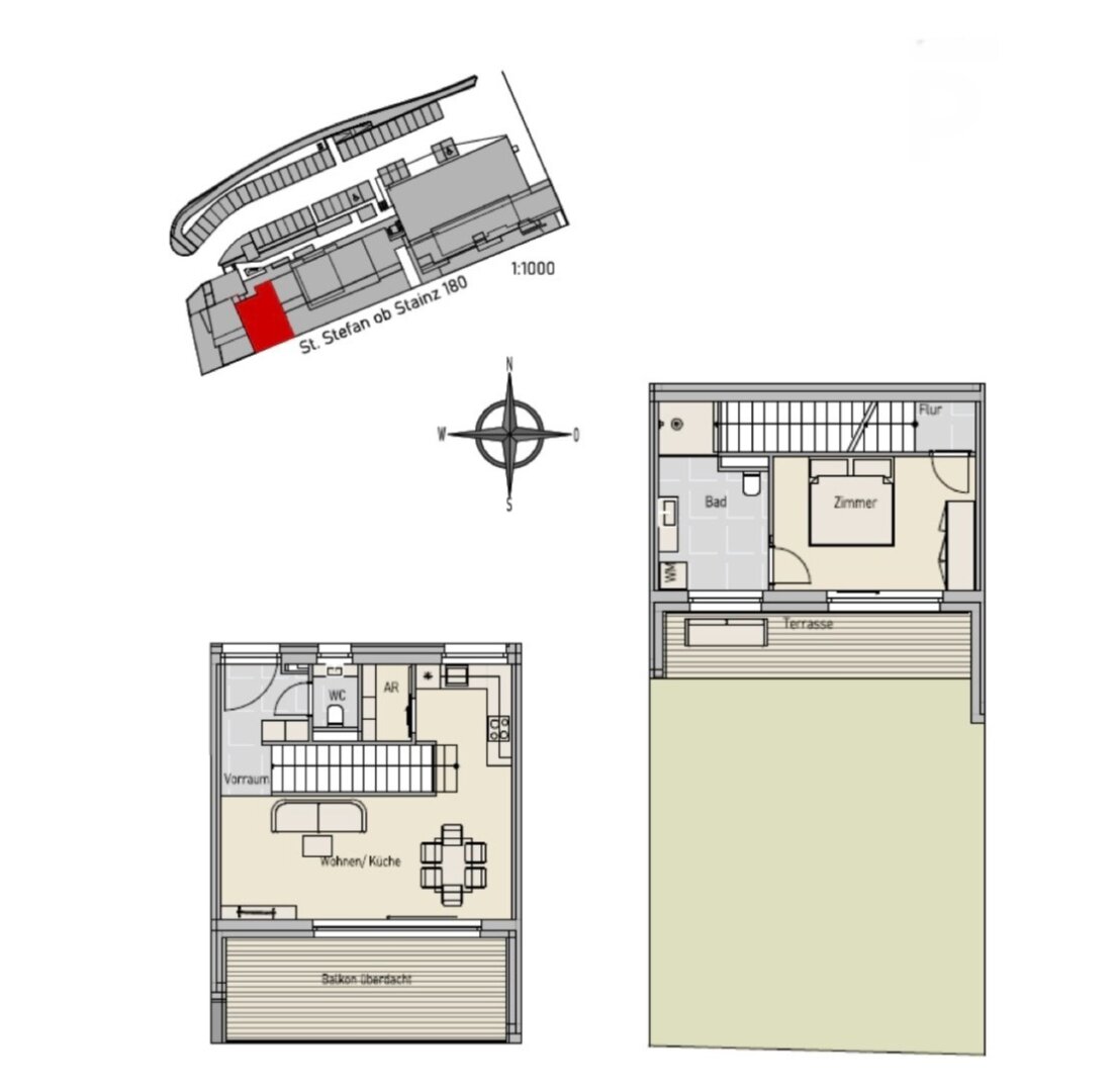
Top 4
Wohnfläche: 61,10 m²
Zimmer: 2
Geschoss: UG + EG
Garten: 67,45 m²
Terrasse: 10,39 m²
Balkon: 17,29 m²
Kaufpreis: € 259.000,-
„Selbstverständlich stehen wir Ihnen nicht nur beim Erwerb Ihrer neuen Immobilie beratend zur Seite, sondern unterstützen Sie ebenso bei einer maßgeschneiderten Finanzierungslösung sowie bei der reibungslosen Organisation des gesamten Kaufprozesses.“
Weitere verfügbare Objekte in dem betreffenden Projekt:
Top
Wfl./m²
Zimmer
Geschoss
Balkon/m²
Terrasse/m²
Garten/m²
Preis/€
Zustand
1.
45,64
2
EG
10,62
30,25
189.000,-
2.
136,92
4
UG+EG
35,86
16,89
94,79
569.000,-
3.
91,84
3
UG+EG
20,45
13,03
71,05
389.000,-
4.
61,10
2
UG+EG
17,29
10,39
67,45
259.000,-
5.
102,40
4
UG+EG
14,17
10,37
49,83
449.000,-
6.
102,66
4
UG+EG
15,79
10,09
49,36
Verkauft
7.
59,07
2
EG
18,19
249.000,-
8.
59,41
2
EG
14,20
249.000,-
9.
95,84
3
UG
33,14
135,11
419.000,-
10.
134,45
5
EG
74,94
55,63
Verkauft
11.
109,86
3
EG
65,41
42,67
479.000,-
12.
107,62
4
EG
64,50
50,10
469.000,-
13.
123,15
4
1.OG
32,73
529.000,-
14.
49,46
2
1.OG
19,55
219.000,-
15.
86,83
3
1.OG
21,59
Verkauft
16.
86,72
3
1.OG
21,96
389.000,-
17.
106,84
3
1.OG
26,18
489.000,-
18.
90,33
3
1.OG
20,42
409.000,-
19.
94,04
3
1.OG
14,56
429.000,-
20.
132,63
4
2.OG
20,98
50,78
790.000,-
21.
94,04
3
1.OG
14,56
429.000,-
22.
143
4
99,00
Für weitere Informationen oder zur Vereinbarung eines Besichtigungstermins stehe ich Ihnen gerne zur Verfügung.
Bitte beachten Sie, dass wir aufgrund unserer Verpflichtung gegenüber dem Verkäufer nur Anfragen beantworten können, die Ihren Namen, Ihre vollständige Adresse und Ihre Telefonnummer enthalten.
Der Vermittler ist als Doppelmakler tätig.
Infrastruktur / Entfernungen
Gesundheit
Arzt
Merkmale
- Garten
Energieausweis
- EPART: BEDARF
- FGEE-Klasse: A+
- FGEE-Wert: 0.61
- HWB-Klasse: C
- HWB-Wert: 65.8
Grundriss






























































































































































































































































































































































































































































































































































































