- Miete
- Wohnung
Objekttyp
WohnungZimmer
4Eckdaten
- Immobilien-ID:1286939
- Zustand:Gepflegt
- Wohnfläche:160m2
- Zimmer:4
Beschreibung
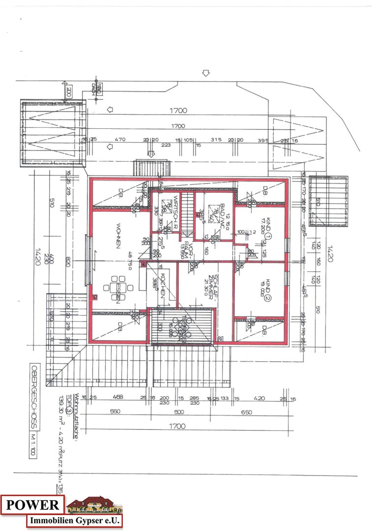
Diese großzügige ca.160 m² große Wohnung Top 3 im ersten Stock, bietet Ihnen nicht nur ein Zuhause mit angenehmen Wohngefühl sondern auch genügend Platz.
Die Wohnung ist mit einer modernen Einbauküche ausgestattet.
Die im Plan ersichtlichen Dachbodenräume wurde nicht gemacht sondern zum Wohnbereich hinzugefügt.
Ein großzügiger Loggia/Terrasse mit ca.15 m² ladet dazu ein, die frische Luft und die Umgebung zu genießen.
Außerdem gibt es die Möglichkeit einen Gartenanteil in der Größe von ca. 40 ² zu nutzen.
Zudem stehen Ihnen ein Stellplatz und ein Carport und ein Abstellraum in der Größe von ca. 11,5 m² zur Verfügung.
Die Lage dieser Wohnung ist einfach wünschenswert.
Neukirchen a.d.E. bietet eine hervorragende Verkehrsanbindung, sowohl durch Busverbindungen als auch durch die Nähe zum Bahnhof (in Braunau am Inn)
was Ihnen eine unkomplizierte Erreichbarkeit weiterer Städte und Regionen garantiert.
In der unmittelbaren Umgebung finden Sie alles, was Sie für den täglichen Bedarf benötigen: Arzt, Schule, Kindergarten, Supermarkt, Spielplatz usw.
Einkauf- Ärzte- Zentrum, Krankenhaus usw. sowie mehr Infrastruktur und höhere Schulen erreicht man in Kürze.
So bleibt Ihnen mehr Zeit für die wichtigen Dinge im Leben – sei es die Familie, Hobbys oder einfach nur die Entspannung.
Vereinbaren sie mit uns einen Besichtigungstermin und lassen Sie sich von diesem einzigartigen Angebot überzeugen und entdecken Sie Ihr neues Zuhause!
In den Monatlichen a-conto Zahlungen der Betriebskosten, wurde schon alles Berücksichtigt !!!
Noch nichts gefunden? Wir informieren Sie über geeignete Immobilienangebote noch vor allen anderen.
Legen Sie jetzt Ihren individuellen Suchagenten unter folgendem Link an. Wir schicken Ihnen passende Immobilien exklusiv vorab zu.
Suchagent anlegen [https://power-immobilien-gypser.service.immo/registrieren/de] - https://power-immobilien-gypser.service.immo/registrieren/de
Der Immobilienmakler erklärt, dass er – entgegen dem in der Immobilienwirtschaft üblichen Geschäftsgebrauch des Doppelmaklers – einseitig nur für den Vermieter tätig ist.
Infrastruktur / Entfernungen
Gesundheit
Arzt
Flächen
Merkmale
- Terrasse
Energieausweis
- EPART: BEDARF
- FGEE-Wert: 0.72
- HWB-Wert: 32
Grundriss

























































































































































































































































































































































































































































































































































































































