- Miete
- Wohnung
Objekttyp
WohnungZimmer
3Badezimmer
1Eckdaten
- Immobilien-ID:19528
- Zustand:Gepflegt
- Wohnfläche:85.92m2
- Nutzfläche:99.73m2
- Zimmer:3
Beschreibung
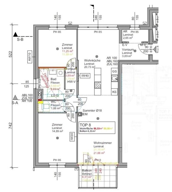
Diese großzügige 3 Zimmerwohnung bietet Familien ein modernes und schönes Zuhause auf rund 86 m² Wohnfläche. Das Herzstück der Wohnung ist das große Wohn-Esszimmer mit zentralem Küchenbereich. Von hier aus gelangen Sie direkt auf den sonnigen Balkon.
Im hinteren Bereich der Wohnung, zwischen den beiden Schlafräumen, befindet sich das separate Badezimmer welches mit einer Badewanne, einem Handwaschbecken und einem Waschmaschinenanschluss ausgestattet ist. Auch verfügt das Badezimmer über ein kleines Fenster. Direkt nebenan befindet sich das WC.
Im Vorzimmer finden Sie noch einen kleinen aber sehr praktischer Abstellraum.
2 PKW-Garagenplätze und ein großes Kellerabteil runden diese tolle Familienwohnung perfekt ab.
Neunkirchen ist ein essenzieller Verkehrsknotenpunkt, der Straßenverkehr ist durch die S6 Semmering-Schnellstraße, die A2 Südautobahn sowie die Wiener Straße B17 optimal erschlossen. Der Bahnhof Neunkirchen ist durch die Südbahn einfach zu erreichen und die Fahrzeiten zum Wiener Hauptbahnhof betragen, je nach Verbindungsart (Railjet, REX), lediglich 48 Minuten.
Die solide gewachsene Infrastruktur der Stadtgemeinde bietet nicht nur zahlreiche Nahversorger, Ärzte, Schulen und ein Landesklinikum in der Nähe an, sondern ermöglicht Ihnen auch einen Besuch im ortsansässigen Erholungszentrum mit integriertem Frei- und Hallenbad. Zahlreiche Einkaufsmöglichkeiten konzentrieren sich in der Innenstadt, im Panoramapark sowie auch im Handelsgebiet „Am Spitz“.
Miete (netto): 646,04 EUR
Betriebskosten (netto): 272,13 EUR
Heizkosten (netto): 56,71 EUR
Umsatzsteuer (gesamt): 103,15 EUR
Gesamtmiete: 1.078,03 EUR
Eigenmittelanzahlung Grundkosten: 21.245,22 EUR
(Eigenmittelanzahlung Grundkosten bei einer Befristung auf 5 Jahre: 10.000,00 EUR / bei einer Gesamtmiete von 1.081,25 EUR)
Der Immobilienmakler erklärt, dass er – entgegen dem in der Immobilienwirtschaft üblichen Geschäftsgebrauch des Doppelmaklers – einseitig nur für den Vermieter tätig ist.
Energieausweis
- EPART: BEDARF
- FGEE-Wert: 0.62
- HWB-Klasse: B
- HWB-Wert: 27.6
Grundriss














































































































































































































































































































































































































































































































































































































































